Ingatlan360 logo
  • Magánszemélyeknek
  • Közvetítőknek
  • Hirdetésfeladás
  • Árak és hirdetési lehetőségek
  • Mennyit ér az ingatlanom?
  • Ingatlan statisztikák

Eladó családi ház CSALÁDI HÁZ, 5-SZOBA,NAGY TELEK 80M., Ráckeve

CSALÁDI HÁZ, 5-SZOBA,NAGY TELEK 80M., Ráckeve képe
5
CSALÁDI HÁZ, 5-SZOBA,NAGY TELEK 80M., Ráckeve 2. képe
CSALÁDI HÁZ, 5-SZOBA,NAGY TELEK 80M., Ráckeve 3. képe5
75 M Ft
694 352 Ft / m²
108m2
Alapterület
1105m2
Telekterület
5
Szoba
Fix 3%-os Otthon Start lakáshitel
Szobák száma
5
Építés éve
nincs megadva
Ingatlan állapota
Új
Emelet
nincs megadva
Parkolás
nincs megadva
Légkondicionáló
Nincs
Közös költség
nincs megadva
Fűtés
nincs megadva
Fal építési anyaga
nincs megadva
Lift
Nincs
Az ingatlanról:
3%-OS HITEL, CSOK+, ILLETÉKMENTESSÉG, ZÖLD-HITEL, ENERGIATAKARÉKOS HÁZ, JÓ KÖZLEKEDÉS!!!

5-SZOBA, NAPELEMMEL KOMBINÁLHATÓ HŐSZIVATTYÚ, PADLÓFŰTÉS, NAGY TELEK!!
KEDVEZŐ ÁR!! 80millió Ft.

Önálló CSALÁDI HÁZAT kínálok megvételre Ráckeve csendes, zöldövezeti mellékutcájában, hatalmas telekkel!!

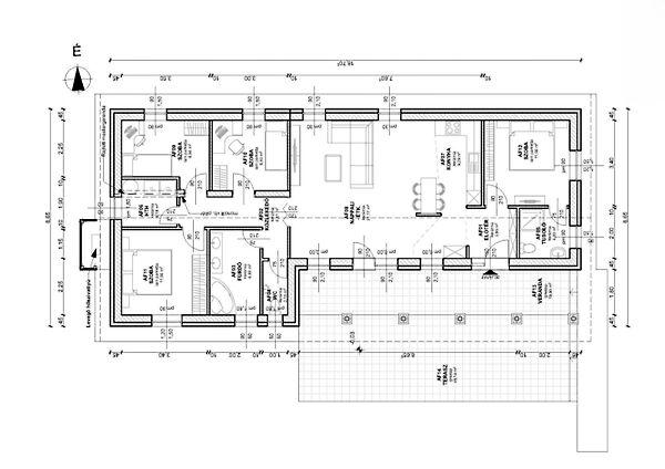
A földszintes OTTHON, NETTÓ 108nm:

Előtér 3,95nm

Közlekedő 6,41nm

Fürdő 6,80nm

WC 2,15nm

Tusoló 4,00nm

HTH 4,18nm

Amerikai-Konyhás-Nappali 40,5nm

Szoba 8,54nm

Szoba 8,40nm

Szoba 11,56nm

Szoba 11,56nm

Veranda 19,90nm

Terasz 38,14nm

Bruttó: 166,05nm

Központi helyen, mégis nyugodt környezetben,
Buszmegálló, Bevásárlási lehetőség, Szakorvosi rendelő, 5 perc gyalogosan!!

Pár műszaki adat:
-Alapozás: vasbeton, 8 cm szerelő-, 8 cm sóderágy
-Falazat: 30 cm Leier blokk külső, 10 cm téglaszerkezetű belső válaszfal
-Födém: faszerkezetű, belül gipszkarton borítással
-Külső hőszigetelés: 10 cm grafitos vagy 15 cm fehér hungarocell
-Tető: nyeregtető Leier cserépfedéssel, 30 cm szigeteléssel
-Nyílászárók: műanyag, fehér, 3 rétegű üvegezéssel
-Bejárati ajtó: hőszigetelt, 85.000 Ft értékben
-Belső ajtók: dekor darabok, 26.000 Ft/db értéken
-Burkolatok: melegburkolat 3.500 Ft/m², hidegburkolat 4.500 Ft/m² értékben
-Gépészet: levegő hőszivattyús padlófűtés, fürdőben törölközőszárítós radiátor
-Villanyszerelés: Schneider Asfora kapcsolók, konnektorok, TV- és internet-kiállások
-Vízszerelés: nagy nyomású műanyag csövezés, meleg vizet is a hőszivattyú biztosítja
-Kerítés: beton elemes, utcafronti pillérekkel, zártszelvény keretű nyíló kapuval, festve

Cégünk INGYENES, iroda és bank-független Hitel ügyintézéssel is rendelkezésére áll, nem csak nálunk vásárolt ingatlanokra!!
Kérdés és-vagy időpont egyeztetés miatt hívjon bátran akár hétvégén is.
Amennyiben nem tudom felvenni visszahívom

Töltsd fel ingatlanhirdetésed ingyenesen!

Ingyenes hirdetésfeladás
Havi több mint egymillió ingatlankereső
Egyszerű és gyors hirdetésfeladás
Hirdetésfeladás
eladó
Zsuzsanna HegedűsIngatlanreferens
+36 70...

Töltsd fel ingatlanhirdetésed ingyenesen!

Ingyenes hirdetésfeladás
Havi több mint egymillió ingatlankereső
Egyszerű és gyors hirdetésfeladás
Hirdetésfeladás
Bank360Bank360
Személyi kölcsön
Lakáshitel
Bankszámla
Utasbiztosítás
1 000 000 Ft50 000 000 Ft
6 hónap50 hónap