Ingatlan360 logo
  • Magánszemélyeknek
  • Közvetítőknek
  • Hirdetésfeladás
  • Árak és hirdetési lehetőségek
  • Mennyit ér az ingatlanom?
  • Ingatlan statisztikák

Eladó telek Csénye

Csénye képe
18
Csénye 2. képe
Csénye 3. képe18
35 M Ft
17 544 Ft / m²
1995m2
Telekterület
Szobák száma
nincs megadva
Építés éve
nincs megadva
Ingatlan állapota
nincs megadva
Emelet
nincs megadva
Parkolás
nincs megadva
Légkondicionáló
Nincs
Közös költség
nincs megadva
Fűtés
nincs megadva
Fal építési anyaga
nincs megadva
Lift
nincs megadva
Az ingatlanról:
Sárvár mellett parkosított, arborétumszerű 1995m2 építési telek eladó

Sárvártól pár percre, egy csendes, szép településen, Csényén kerül eladásra ez az 1995 m2-es, 3 telek összevonásából kialakított, jelenleg 1 helyrajzi számon lévő építési telek.

A terület beépíthetőségi paraméterei:

TV-O—30-K-550 (településközpont vegyes terület)

Beépíthetőség: 30%

Oldalhatáros építési mód

Előkert min. 5m

A telek mérete miatt több telekké is osztható (min. telekméret 550m2)

Közművek:

Gáz a telekhatáron (2 csonk); víz, villany a telken

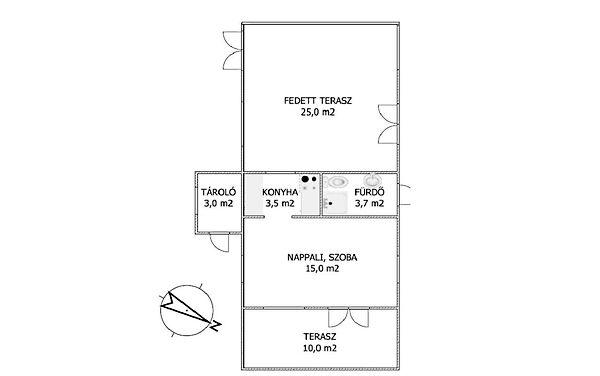
A telken elhelyeztek egy nagyon szép állapotú, minőségi kerti faházat, amely szoba-konyha helyiségből (18,5m2); kívülről megközelíthető zuhanyzós fürdőszobából (3,7m2), egy 3m2-es tárolóból áll, illetve egy fedett (25m2) terasz és a terasz (10m) is tartozik hozzá. A tulajdonosok hétvégi háznak, vagy vendégek fogadására használták korábban. Fűtése elektromos panel és hűtő-fűtő klíma.

További információ és időpont egyeztetés:

Molnár Tamásné Dóra

Töltsd fel ingatlanhirdetésed ingyenesen!

Ingyenes hirdetésfeladás
Havi több mint egymillió ingatlankereső
Egyszerű és gyors hirdetésfeladás
Hirdetésfeladás
eladó
Molnár Tamásné Ingatlanreferens
+36 30...
iroda logo
Fundamenta IngatlanIroda további hirdetései

Töltsd fel ingatlanhirdetésed ingyenesen!

Ingyenes hirdetésfeladás
Havi több mint egymillió ingatlankereső
Egyszerű és gyors hirdetésfeladás
Hirdetésfeladás
Bank360Bank360
Személyi kölcsön
Lakáshitel
Bankszámla
Utasbiztosítás
1 000 000 Ft50 000 000 Ft
6 hónap50 hónap