Ingatlan360 logo
  • Magánszemélyeknek
  • Közvetítőknek
  • Hirdetésfeladás
  • Árak és hirdetési lehetőségek
  • Mennyit ér az ingatlanom?
  • Ingatlan statisztikák

Eladó telek Fülemüle, Diósd

Fülemüle, Diósd képe
7
Fülemüle, Diósd 2. képe
Fülemüle, Diósd 3. képe7
75 M Ft
Ár
960m2
Alapterület
Szobák száma
nincs megadva
Építés éve
nincs megadva
Ingatlan állapota
nincs megadva
Emelet
nincs megadva
Parkolás
nincs megadva
Légkondicionáló
Nincs
Közös költség
nincs megadva
Fűtés
nincs megadva
Fal építési anyaga
nincs megadva
Lift
Nincs
Az ingatlanról:
ELADÓ ÉPÍTÉSI TELEK DIÓSDLIGETEN!

960 nm, 75 MFt.

Az eladó építési telek LKE-11 övezeti besorolású, az utolsó beépítetlen telek az utcában, amit egy magánúton át lehet megközelíteni. A telekre érvényes építési engedély van, a tervek rendelkezésre állnak. Villany a telek előtt, kút van a telken belül, a víztervek rendelkezésre állnak. Víz és csatorna vezetékek rendelkezésre állnak. A beépíthetőség 20%, az épület magasság 5,5 m, a zöldfelület minimum 50%.

A környék nyugodt, rendezett, családi házas övezet. Séta távolságra van egy új bölcsőde, illetve 1-3 km-en belül elérhető több élelmiszer bolt, DM, benzinkút, állatorvosi rendelő, sport központ és étterem.

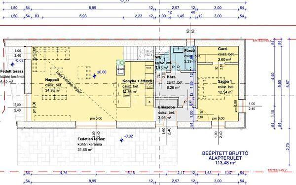
A telekre 2 szintes, összesen 145 nm-es hasznos alapterületű családi házat terveztek, melynek földszintjén amerikai konyhás nappali, fürdő, háztartási helyiség, és egy szoba kap majd helyet. Az emeleten 2 hálószoba, fürdőszoba, és külön WC kerül kialakításra. Amennyiben a vevő szeretné, a jelenlegi tulajdonos részletes megbeszélés után, kulcsrakészre építi a házat. ...TOVÁBBI, TÖBBEZRES INGATLAN KÍNÁLAT: www.gdn-ingatlan.hu - GDN azonosító: 392283

Töltsd fel ingatlanhirdetésed ingyenesen!

Ingyenes hirdetésfeladás
Havi több mint egymillió ingatlankereső
Egyszerű és gyors hirdetésfeladás
Hirdetésfeladás
eladó
Dér KrisztinaIngatlanreferens
+36 70...
iroda logo
GDN IngatlanhálózatIroda további hirdetései

Töltsd fel ingatlanhirdetésed ingyenesen!

Ingyenes hirdetésfeladás
Havi több mint egymillió ingatlankereső
Egyszerű és gyors hirdetésfeladás
Hirdetésfeladás
Bank360Bank360
Személyi kölcsön
Lakáshitel
Bankszámla
Utasbiztosítás
1 000 000 Ft50 000 000 Ft
6 hónap50 hónap