Eladó telek Építési, Pusztazámor
65 M Ft
Ár
1940m2
Alapterület
Szobák száma
nincs megadva
Építés éve
nincs megadva
Ingatlan állapota
nincs megadva
Emelet
nincs megadva
Parkolás
nincs megadva
Légkondicionáló
Nincs
Közös költség
nincs megadva
Fűtés
nincs megadva
Fal építési anyaga
nincs megadva
Lift
Nincs
Az ingatlanról:
HA SZERETI A CSENDET, NYUGALMAT ÉS A GYÖNYÖRŰ PANORÁMÁT, AKKOR EZ AZ INGATLAN ÖNRE VÁR!
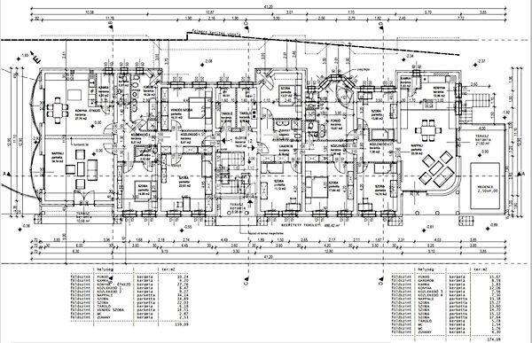
Eladó Pusztazámor egyik csendes utcájában, családi házak szomszédságában egy közel 2000 m2 területű telek, melyen elhelyezkedik, egy 2 lakóegységet magában foglaló ikerház megépített alapjával, mely a falakat is magába foglalja.
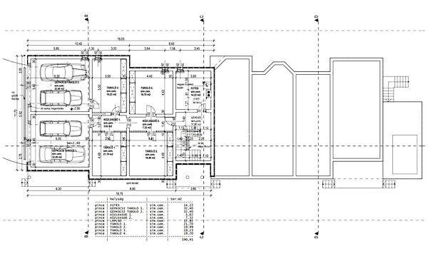
A lakások nettó lakóterülete 159 m2 és 174 m2, a pince szinten pedig mindkét lakás számára tároló helyiségek és garázsok lettek tervezve, melynek területe 190 m2.
A ház jelenlegi készültségi foka 30 %-os, melyre a jelenlegi tulajdonos a fennmaradási engedélyt megkapta, illetve az újonnan elkészült tervek elfogadásra kerültek.
A közműveket bevezették, telken belül mind megtalálhatók, összközműves.
Eressze szabadjára fantáziáját és szárnyaljon a lehetőségekkel, amit ez az ingatlan magában rejt!
Ne hagyja ki, vágjon bele! ...TOVÁBBI, TÖBBEZRES INGATLAN KÍNÁLAT: www.gdn-ingatlan.hu - GDN azonosító: 340486
Eladó Pusztazámor egyik csendes utcájában, családi házak szomszédságában egy közel 2000 m2 területű telek, melyen elhelyezkedik, egy 2 lakóegységet magában foglaló ikerház megépített alapjával, mely a falakat is magába foglalja.
A lakások nettó lakóterülete 159 m2 és 174 m2, a pince szinten pedig mindkét lakás számára tároló helyiségek és garázsok lettek tervezve, melynek területe 190 m2.
A ház jelenlegi készültségi foka 30 %-os, melyre a jelenlegi tulajdonos a fennmaradási engedélyt megkapta, illetve az újonnan elkészült tervek elfogadásra kerültek.
A közműveket bevezették, telken belül mind megtalálhatók, összközműves.
Eressze szabadjára fantáziáját és szárnyaljon a lehetőségekkel, amit ez az ingatlan magában rejt!
Ne hagyja ki, vágjon bele! ...TOVÁBBI, TÖBBEZRES INGATLAN KÍNÁLAT: www.gdn-ingatlan.hu - GDN azonosító: 340486
Töltsd fel ingatlanhirdetésed ingyenesen!
Ingyenes hirdetésfeladás
Havi több mint egymillió ingatlankereső
Egyszerű és gyors hirdetésfeladás
Töltsd fel ingatlanhirdetésed ingyenesen!
Ingyenes hirdetésfeladás
Havi több mint egymillió ingatlankereső
Egyszerű és gyors hirdetésfeladás
Személyi kölcsön
Lakáshitel
Bankszámla
Utasbiztosítás
1 000 000 Ft50 000 000 Ft
6 hónap50 hónap