Ingatlan360 logo
  • Magánszemélyeknek
  • Közvetítőknek
  • Hirdetésfeladás
  • Árak és hirdetési lehetőségek
  • Mennyit ér az ingatlanom?
  • Ingatlan statisztikák

Eladó telek Siófok

Siófok képe
4
Siófok 2. képe
Siófok 3. képe4
129 M Ft
123 919 Ft / m²
1041m2
Telekterület
Szobák száma
nincs megadva
Építés éve
nincs megadva
Ingatlan állapota
nincs megadva
Emelet
nincs megadva
Parkolás
nincs megadva
Légkondicionáló
Nincs
Közös költség
nincs megadva
Fűtés
nincs megadva
Fal építési anyaga
nincs megadva
Lift
Nincs
Az ingatlanról:
Siófokon, a Foki-hegy és az Ezüstpart határán, a Balatontól mindössze 500 méterre eladó egy 1041 m² területű ingatlan, „Lk” övezeti besorolással.
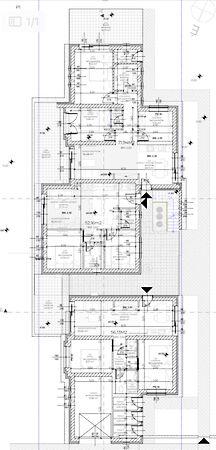
Az ingatlanhoz 6 lakás építésére szóló érvényes építési engedély és teljes tervdokumentáció tartozik.

Tervezett lakások adatai:
1. lakás – Földszint
Nettó alapterület: 56,13 m²
Terasz: 14,46 m²
2. lakás – Földszint
Nettó alapterület: 52,16 m²
3. lakás – Földszint
Nettó alapterület: 52,16 m²
Terasz: 37,17 m²
4. lakás – Emelet
Nettó alapterület: 67,21 m²
Terasz: 10,77 m²
Loggia: 4,62 m²
5. lakás – Emelet
Nettó alapterület: 52,16 m²
6. lakás – Emelet
Nettó alapterület: 67,92 m²
Terasz: 11,56 m²
Loggia: 4,34 m²

A környéken új építésű lakások esetében az átlagos piaci ár 1,4 millió Ft/m².

A projekt kiváló lehetőség befektetők és fejlesztők számára, mivel az engedélyezett, teljes körű tervdokumentáció azonnali építkezést tesz lehetővé.

Lido Home - Ingatlanok egy életen át!

Töltsd fel ingatlanhirdetésed ingyenesen!

Ingyenes hirdetésfeladás
Havi több mint egymillió ingatlankereső
Egyszerű és gyors hirdetésfeladás
Hirdetésfeladás
eladó
Göcsei GergőIngatlanreferens
+36 70...
iroda logo
Lido Home BalatonkeneseIroda további hirdetései

Töltsd fel ingatlanhirdetésed ingyenesen!

Ingyenes hirdetésfeladás
Havi több mint egymillió ingatlankereső
Egyszerű és gyors hirdetésfeladás
Hirdetésfeladás
Bank360Bank360
Személyi kölcsön
Lakáshitel
Bankszámla
Utasbiztosítás
1 000 000 Ft50 000 000 Ft
6 hónap50 hónap