Ingatlan360 logo
  • Magánszemélyeknek
  • Közvetítőknek
  • Hirdetésfeladás
  • Árak és hirdetési lehetőségek
  • Mennyit ér az ingatlanom?
  • Ingatlan statisztikák

Eladó garázs Győr, Győr

Győr, Győr képe
3
Győr, Győr 2. képe
Győr, Győr 3. képe3
8,5 M Ft
472 222 Ft / m²
18m2
Alapterület
Szobák száma
nincs megadva
Építés éve
1986
Ingatlan állapota
Átlagos
Emelet
nincs megadva
Parkolás
Nincs
Légkondicionáló
Nincs
Közös költség
nincs megadva
Fűtés
nincs megadva
Fal építési anyaga
nincs megadva
Lift
Nincs
Az ingatlanról:
Eladó GARÁZS a Belváros szélén!

Mindenki ismeri a belvárosi parkolás nehézségeit...
A Szent István úti Shell benzinkút mögött, Kazinczy Gimnáziumhoz, Vasútállomáshoz közel, új építésű társasházak szomszédságában, ahol megállni szinte lehetetlen. Most van itt a lehetőség, hogy ezt a problémát enyhítsük!
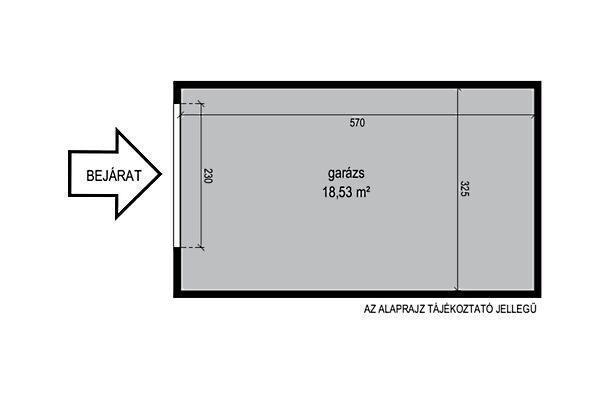
18,5m2 alapterületű önálló garázs eladó a Domb utcai garázssoron.
A pontos méreteket a fotók között megtalálható alaprajzon mutatom.

Ha felkeltette az Ön érdeklődését is, időpontegyeztetés után rugalmasan megtekinthető, HÍVJON! alacsony fenntartás, közeli belváros
(További képekért és információkért kérem hívjon!)

Töltsd fel ingatlanhirdetésed ingyenesen!

Ingyenes hirdetésfeladás
Havi több mint egymillió ingatlankereső
Egyszerű és gyors hirdetésfeladás
Hirdetésfeladás
eladó
Unger-Takács AnikóIngatlanreferens
+36 70...
iroda logo
Városi IngatlanirodaIroda további hirdetései

Töltsd fel ingatlanhirdetésed ingyenesen!

Ingyenes hirdetésfeladás
Havi több mint egymillió ingatlankereső
Egyszerű és gyors hirdetésfeladás
Hirdetésfeladás
Bank360Bank360
Személyi kölcsön
Lakáshitel
Bankszámla
Utasbiztosítás
1 000 000 Ft50 000 000 Ft
6 hónap50 hónap