Ingatlan360 logo
  • Magánszemélyeknek
  • Közvetítőknek
  • Hirdetésfeladás
  • Árak és hirdetési lehetőségek
  • Mennyit ér az ingatlanom?
  • Ingatlan statisztikák

Eladó garázs Nyíregyháza

Nyíregyháza képe
3
Nyíregyháza 2. képe
Nyíregyháza 3. képe3
9 M Ft
600 000 Ft / m²
15m2
Alapterület
Szobák száma
nincs megadva
Építés éve
nincs megadva
Ingatlan állapota
Felújítandó
Emelet
nincs megadva
Parkolás
nincs megadva
Légkondicionáló
Nincs
Közös költség
nincs megadva
Fűtés
nincs megadva
Fal építési anyaga
nincs megadva
Lift
Nincs
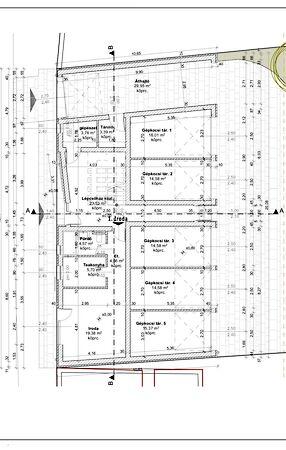
Az ingatlanról:
Eladásra kínálunk Nyíregyháza belvárosában (Hatzel Tér közelében) új építésű társasházban, egy 14,5 nm-s garázst!

A társasház kivitelezése tapasztalt és megbízható építtető nevéhez fűződik!

 

Ár: 9 M Ft + 27% Áfa

Készültségi szint: falazás

 

Amit még tudni kell:

 

- A garázs megközelítése belső uvarról történik

- tégla építés + homlokzati szigetelés

- elektromos garázskapu

- járólappal burkolt

 

Töltsd fel ingatlanhirdetésed ingyenesen!

Ingyenes hirdetésfeladás
Havi több mint egymillió ingatlankereső
Egyszerű és gyors hirdetésfeladás
Hirdetésfeladás
eladó
Gajdos BrigittaIngatlanreferens
+36 20...
iroda logo
Értékes Otthon IngatlanirodaIroda további hirdetései

Töltsd fel ingatlanhirdetésed ingyenesen!

Ingyenes hirdetésfeladás
Havi több mint egymillió ingatlankereső
Egyszerű és gyors hirdetésfeladás
Hirdetésfeladás
Bank360Bank360
Személyi kölcsön
Lakáshitel
Bankszámla
Utasbiztosítás
1 000 000 Ft50 000 000 Ft
6 hónap50 hónap