Ingatlan360 logo
  • Magánszemélyeknek
  • Közvetítőknek
  • Hirdetésfeladás
  • Árak és hirdetési lehetőségek
  • Mennyit ér az ingatlanom?
  • Ingatlan statisztikák

Eladó családi ház Pest, Áporka

Pest, Áporka képe
7
Pest, Áporka 2. képe
Pest, Áporka 3. képe7
65 M Ft
773 810 Ft / m²
84m2
Alapterület
302m2
Telekterület
4
Szoba
Fix 3%-os Otthon Start lakáshitel
Szobák száma
4
Építés éve
nincs megadva
Ingatlan állapota
Új
Emelet
nincs megadva
Parkolás
Udvarban
Légkondicionáló
Nincs
Közös költség
nincs megadva
Fűtés
nincs megadva
Fal építési anyaga
Tégla
Lift
Nincs
Az ingatlanról:
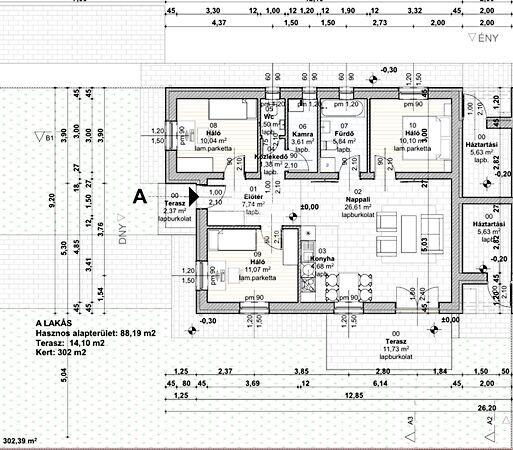
Áporkán eladó, új építésű, földszintes utcafronti ikerházi lakás 302 m² saját kerttel eladó!

Áporka egyik csendesebb, forgalomtól védett utcájában kínáljuk megvételre ezt a nettó 82 m²-es, modern, földszintes ikerházi lakást.
A két lakás kizárólag a tárolónál kapcsolódik, így a leendő tulajdonos számára kivételesen nyugodt, privát környezetet biztosít.

A 302 m²-es, leválasztott telekrész ideális nagycsaládosoknak, kertbarátoknak, vagy bárkinek aki, jól használható kertre vágyik.

Műszaki tartalom ízelítő:

-30 cm Leier tégla főfalak
-Dryvit rendszerű homlokzati hőszigetelés
-3 rétegű, hő- és hangszigetelt műanyag nyílászárók
-Betoncserép fedés
-Fa födém 20 cm kőzetgyapot szigeteléssel
-10 cm lépésálló Nikecell aljzatszigetelés
-Hőszivattyú + teljes házban padlófűtés
-Elektromos bojler meleg víz ellátás

Elrendezés és helyiségek méretei: előszoba: 5,64 m², nappali: 29,24 m², konyha: 5,30 m², szoba 1: 12,28 m², szoba 2: 10,04 m² szoba 3: 9,66 m², fürdőszoba: 5,82 m², külön WC: 1,50 m², kamra: 2,96 m²,
külső tároló: 6,65 m², terasz: 11,73 m²

A hideg- és meleg burkolatok, beltéri ajtók, szaniterek, választhatók keretösszegig.

Az otthon így teljes mértékben a leendő tulajdonos stílusához igazítható.

Várható átadás: 2026 tavasza

Modern, energiatakarékos otthon saját telekkel, kivételes lehetőség Áporkán!

FINANSZÍROZÁS:
Nálunk mindent egy helyen intézhet:
- hivatalos ingatlanközvetítés;
- szakszerű jogi képviselet;
- profi CSOK-PLUSZ, és hitelügyintézés: 16 Bank, több mint 100 konstrukció;

VÁROM MEGTISZTELŐ HÍVÁSÁT!

A részletes adatvédelmi tájékoztató folyamatosan elérhető a gdn ingatlan web oldalon. ...TOVÁBBI, TÖBBEZRES INGATLAN KÍNÁLAT: www.gdn-ingatlan.hu - GDN azonosító: 389862

Töltsd fel ingatlanhirdetésed ingyenesen!

Ingyenes hirdetésfeladás
Havi több mint egymillió ingatlankereső
Egyszerű és gyors hirdetésfeladás
Hirdetésfeladás
eladó
Csík ZsoltIngatlanreferens
+36 30...
iroda logo
GDN IngatlanhálózatIroda további hirdetései

Töltsd fel ingatlanhirdetésed ingyenesen!

Ingyenes hirdetésfeladás
Havi több mint egymillió ingatlankereső
Egyszerű és gyors hirdetésfeladás
Hirdetésfeladás
Bank360Bank360
Személyi kölcsön
Lakáshitel
Bankszámla
Utasbiztosítás
1 000 000 Ft50 000 000 Ft
6 hónap50 hónap