Ingatlan360 logo
  • Magánszemélyeknek
  • Közvetítőknek
  • Hirdetésfeladás
  • Árak és hirdetési lehetőségek
  • Mennyit ér az ingatlanom?
  • Ingatlan statisztikák

Eladó családi ház Béke, Aszód

Béke, Aszód képe
20
Béke, Aszód 2. képe
Béke, Aszód 3. képe20
105 M Ft
408 560 Ft / m²
257m2
Alapterület
381m2
Telekterület
8
Szoba
Fix 3%-os Otthon Start lakáshitel
Szobák száma
8
Építés éve
nincs megadva
Ingatlan állapota
Felújított
Emelet
nincs megadva
Parkolás
1 garázs
Légkondicionáló
Nincs
Közös költség
nincs megadva
Fűtés
Cirkófűtés
Fal építési anyaga
Tégla
Lift
Nincs
Az ingatlanról:
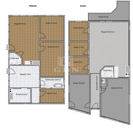
Aszódon a Béke utcába 8. szám alatt 381 m2-es összközműves telken eladó egy panorámás, három generációs tégla építésű, kétszintes családi ház.

Az ingatlant 2006-ban újították fel, dryvit szigeteléssel lett ellátva, nyílászárói fa és műanyag thermo kivitelűek. Fűtését és meleg víz ellátását 2017-ben korszerűsített 2db kondenzációs kombi gázkazán látja el.

A felső lakás 136 m2-es, ami magába foglalja a két fűtött garázst is (19,4, 25,4m2), melyek elektromos garázsajtóval lettek ellátva.

Az 54m2-es nappaliból gyönyörű panoráma látható a 15 m2-es terasz irányába. A 9,92 m2-es hálószoba is panorámás kilátással rendelkezik. További két szoba található ezen a szinten és egy igényes anyagokkal felújított fürdőszoba is.

Az alsó szinten két lakás helyezkedik el. A nagyobbik (76m2)szintén panorámás kilátással rendelkezik. Itt 32,6 m2-es amerikai konyhás nappali és két nagy szoba (15,2m2, 23,2m2) és egy 5 m2-es fürdőszoba lett kialakítva.

A harmadik lakás 45,3 m2-es. Itt 17 m2-es a nappali 8,4m2-es részben egybenyitott konyhával, 10 m2-es szoba és közlekedő és egy 7m2-es fürdőszoba taláható!

Számos beépített bútor és a három konyha is a vételár részét képezik.

A közművek almérőkkel rendelkeznek.

A kertben a beton burkolatú udvar rész alatt 30m2 tárolásra alkamas helyiség van.


Amennyiben hirdetésem felkeltette az érdeklődését vagy egyéb információra van szüksége ,hívjon bizalommal! ...TOVÁBBI, TÖBBEZRES INGATLAN KÍNÁLAT: www.gdn-ingatlan.hu - GDN azonosító: 379234

Töltsd fel ingatlanhirdetésed ingyenesen!

Ingyenes hirdetésfeladás
Havi több mint egymillió ingatlankereső
Egyszerű és gyors hirdetésfeladás
Hirdetésfeladás
eladó
Horváth PéterIngatlanreferens
+36 70...
iroda logo
GDN IngatlanhálózatIroda további hirdetései

Töltsd fel ingatlanhirdetésed ingyenesen!

Ingyenes hirdetésfeladás
Havi több mint egymillió ingatlankereső
Egyszerű és gyors hirdetésfeladás
Hirdetésfeladás
Bank360Bank360
Személyi kölcsön
Lakáshitel
Bankszámla
Utasbiztosítás
1 000 000 Ft50 000 000 Ft
6 hónap50 hónap