Ingatlan360 logo
  • Magánszemélyeknek
  • Közvetítőknek
  • Hirdetésfeladás
  • Árak és hirdetési lehetőségek
  • Mennyit ér az ingatlanom?
  • Ingatlan statisztikák

Eladó családi ház Bag

Bag képe
21
Bag 2. képe
Bag 3. képe21
116 M Ft
783 784 Ft / m²
148m2
Alapterület
1051m2
Telekterület
6
Szoba
Fix 3%-os Otthon Start lakáshitel
Szobák száma
6
Építés éve
1980
Ingatlan állapota
Felújított
Emelet
Földszint
Parkolás
Parkolóház
Légkondicionáló
Nincs
Közös költség
nincs megadva
Fűtés
Cirkófűtés
Fal építési anyaga
Tégla
Lift
Nincs
Az ingatlanról:
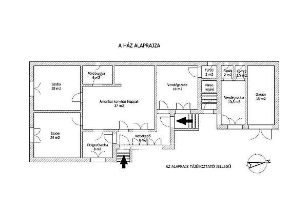
Megvételre kínálok egy 148 m2 es különleges lakóházat egy 1051 m2 es telken Bag Pest Megye Központi részéhez közel Ideális választás családi otthonnak nagyobb létszámú család részére akár több generációnak is A lakóterület kényelmes tágas beosztású központban a nagy amerikai konyhás nappalival Innen nyílnak a szobák és a fürdőszoba A belső kialakítás igényes és harmonikus szép színekkel és anyagokkal Van két külön vendégszoba saját fürdővel Az egyik kialakítása még folyamatban van A központifűtés gázcirkókazán de van több fatüzelésű cserépkályha is a házban amivel gazdaságosan biztosítható a kellemes hőmérséklet hideg időben A lakóházat teljesen felújították néhány éve Új burkolatokat hőszigetelt műanyag ablakokat külső dryvit szigetelést is kapott az épület többek között Riasztórendszer biztonsági ajtók és redőnyök védik a házat További kényelmi funkció a távműködtetésű gépkocsibejárókapu Kívülről a díszkert a ház körül a kocsifelhajtón díszburkolat egészíti ki a belső tér és a ház harmóniáját Az épület alatt 16 m2 es száraz poroszsüveg boltozatos pince van továbbá egy 76 m2 es gazdasági épület kínál további lehetőségeket Így összesen két garázs és további két kocsibeálló használható A padlástér beépíthető így tovább növelhető a használható terület Minden közmű be van vezetve és van egy fúrt kút is Az ingatlan lokációja nagyon jó a közelben megtalálható minden amire szükség lehet Az M3 as autópályán fél óra alatt elérhető Budapest is Amennyiben a hirdetés felkeltette érdeklődését kérem hívjon a hét bármely napján Az OTP Ingatlanpont teljeskörű ügyintézéssel áll az eladók és a vevők rendelkezésére A kínálatunkból választott ingatlan finanszírozásához kedvezményes hitel és pénzügyi konstrukciókat kínálunk Az adásvételi szerződés megkötéséhez igény szerint megbízható ügyvédi közreműködést és a kapcsolódó ügyek intézéséhez segítséget nyújtunk Referenciaszám: M222487

Töltsd fel ingatlanhirdetésed ingyenesen!

Ingyenes hirdetésfeladás
Havi több mint egymillió ingatlankereső
Egyszerű és gyors hirdetésfeladás
Hirdetésfeladás
eladó
Markesz AndrásIngatlanreferens
+36 20...
iroda logo
Jászberény Szentháromság tér 2 - OTP Ingatlanpont IrodaIroda további hirdetései

Töltsd fel ingatlanhirdetésed ingyenesen!

Ingyenes hirdetésfeladás
Havi több mint egymillió ingatlankereső
Egyszerű és gyors hirdetésfeladás
Hirdetésfeladás
Bank360Bank360
Személyi kölcsön
Lakáshitel
Bankszámla
Utasbiztosítás
1 000 000 Ft50 000 000 Ft
6 hónap50 hónap