Ingatlan360 logo
  • Magánszemélyeknek
  • Közvetítőknek
  • Hirdetésfeladás
  • Árak és hirdetési lehetőségek
  • Mennyit ér az ingatlanom?
  • Ingatlan statisztikák

Eladó családi ház Balatonfenyves

Balatonfenyves képe
36
Balatonfenyves 2. képe
Balatonfenyves 3. képe36
55 M Ft
901 475 Ft / m²
61m2
Alapterület
148m2
Telekterület
2
Szoba
Fix 3%-os Otthon Start lakáshitel
Szobák száma
2
Építés éve
nincs megadva
Ingatlan állapota
Új
Emelet
nincs megadva
Parkolás
Parkoló
Légkondicionáló
Van
Közös költség
nincs megadva
Fűtés
Elektromos
Fal építési anyaga
Könnyűszerkezet
Lift
Nincs
Az ingatlanról:
Balatonfenyves közkedvelt részén a Balatontól 1300 méterre egy új, könnyűszerkezetes lakóházakból álló projekt várja a leendő tulajdonosokat!
Az 3 lakóegységes lakóparkban három különálló ház kerül felépítésre.
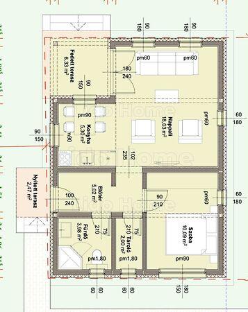
A lakóházak helyiségkiosztása: nappali, konyha, hálószoba, fürdőszoba, előtér, kettő terasz, tároló.
Az ingatlanok főbb műszaki jellemzői:
-hőszigetelt 3 rétegű redőnnyel felszerelt műanyag nyílászárók,
-10 cm homlokzat szigetelés,
-Klímás hűtés-fűtés,
-Beton (Bramac vagy Terrán) vagy Kerámia cserépfedés,
Minden egységhez saját kert tartozik, amely a nyári hónapokban ideális helyet biztosít kinti tevékenységekre, sütögetésre.
Minden családi házhoz egy-egy parkoló tartozik melynek ára az irányárban benne van.
A lakóházak egymástól 3D-s kerítéssel kerülnek elszeparálásra.
A hirdetett ingatlan tulajdoni lap szerint 61 m2 önálló Családi ház melyhez 170 m2 saját kert tartozik.
Az ingatlan kulcsra kész átadása legkésőbb 2026. végére várható.
Fizetési ütemezésről, részletesebb műszaki tartalomról, az ingatlannal kapcsolatos egyéb kérdésekről személyesen, telefonon vagy dokumentációs anyag küldésével tudom tájékoztatni.
A kivitelezés velem rugalmasan megtekinthető.
Amennyiben a LIDO HOME BALATONBOGLÁR által kínált családi ház, vagy bármely a kínálatunkban található ingatlan felkeltette érdeklődését hívjon bizalommal.
LIDO HOME - Ingatlanok egy életen át!

Töltsd fel ingatlanhirdetésed ingyenesen!

Ingyenes hirdetésfeladás
Havi több mint egymillió ingatlankereső
Egyszerű és gyors hirdetésfeladás
Hirdetésfeladás
eladó
Meiszter AndreaIngatlanreferens
+36 70...
iroda logo
Lido Home BalatonboglárIroda további hirdetései

Töltsd fel ingatlanhirdetésed ingyenesen!

Ingyenes hirdetésfeladás
Havi több mint egymillió ingatlankereső
Egyszerű és gyors hirdetésfeladás
Hirdetésfeladás
Bank360Bank360
Személyi kölcsön
Lakáshitel
Bankszámla
Utasbiztosítás
1 000 000 Ft50 000 000 Ft
6 hónap50 hónap