Eladó ikerház Balatonrendes
89,9 M Ft
1 182 895 Ft / m²
76m2
Alapterület
350m2
Telekterület
4
Szoba
Szobák száma
4
Építés éve
2024
Ingatlan állapota
Új
Emelet
nincs megadva
Parkolás
Udvarban
Légkondicionáló
Van
Közös költség
nincs megadva
Fűtés
Elektromos
Fal építési anyaga
Tégla
Lift
nincs megadva
Az ingatlanról:
Balatonrendesen eladó kétlakásos ikerház!
Balatonrendes
telekterület: 700 m2 (350-350)
alapterület: 76 m2 lakásonként
A lakások külön és egyben is eladók!
Irányár: 89.9 MHUF
Az ingatlan Pálköve strandjától pár száz méterre található, nyugodt kis utcában. A ház 2024-ben épület, a belső burkolatokat, szaniterek a leendő tulajdonos még kiválaszthatja. A ház fűtését elektromos fűtőpanelek és hűtő-fűtő klíma biztosítja.
A ház hangulatos, elrendezése praktikus, méreteit tekintve tökéletes nyaralónak, lakásnak. Igazán jó választás befektetésnek is!
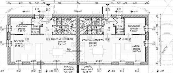
A lakások elrendezése:
-földszint: fürdőszoba tusolóval, mellékhelyiség, félszoba, konyha étkező és nappali egy légtérben, terasz.
-tetőtér: közlekedő, két szoba, furdőszoba, mellékhelyiség
műszaki adatok:
-falazat: Porotherm Dry Fix 30-as tégla
-10 cm külső szigetelés
-falusi CSOK igényelhető
-lakások válaszfala: dupla falazat 2*20 cm és hangszigetelés választja el egymástól.
- 3 rétegű fa ablakok
-grafitos homlokzati szigetelés
-cseréptető
-elektromos bojler
-külön mérőóra
Részletekkel, megtekintéssel kapcsolatban keress bizalommal!
(bemutató videó az oldalamon)
Tel.: +3620 237 5558
Balatonrendes
telekterület: 700 m2 (350-350)
alapterület: 76 m2 lakásonként
A lakások külön és egyben is eladók!
Irányár: 89.9 MHUF
Az ingatlan Pálköve strandjától pár száz méterre található, nyugodt kis utcában. A ház 2024-ben épület, a belső burkolatokat, szaniterek a leendő tulajdonos még kiválaszthatja. A ház fűtését elektromos fűtőpanelek és hűtő-fűtő klíma biztosítja.
A ház hangulatos, elrendezése praktikus, méreteit tekintve tökéletes nyaralónak, lakásnak. Igazán jó választás befektetésnek is!
A lakások elrendezése:
-földszint: fürdőszoba tusolóval, mellékhelyiség, félszoba, konyha étkező és nappali egy légtérben, terasz.
-tetőtér: közlekedő, két szoba, furdőszoba, mellékhelyiség
műszaki adatok:
-falazat: Porotherm Dry Fix 30-as tégla
-10 cm külső szigetelés
-falusi CSOK igényelhető
-lakások válaszfala: dupla falazat 2*20 cm és hangszigetelés választja el egymástól.
- 3 rétegű fa ablakok
-grafitos homlokzati szigetelés
-cseréptető
-elektromos bojler
-külön mérőóra
Részletekkel, megtekintéssel kapcsolatban keress bizalommal!
(bemutató videó az oldalamon)
Tel.: +3620 237 5558
Töltsd fel ingatlanhirdetésed ingyenesen!
Ingyenes hirdetésfeladás
Havi több mint egymillió ingatlankereső
Egyszerű és gyors hirdetésfeladás
Töltsd fel ingatlanhirdetésed ingyenesen!
Ingyenes hirdetésfeladás
Havi több mint egymillió ingatlankereső
Egyszerű és gyors hirdetésfeladás
Személyi kölcsön
Lakáshitel
Bankszámla
Utasbiztosítás
1 000 000 Ft50 000 000 Ft
6 hónap50 hónap