Ingatlan360 logo
  • Magánszemélyeknek
  • Közvetítőknek
  • Hirdetésfeladás
  • Árak és hirdetési lehetőségek
  • Mennyit ér az ingatlanom?
  • Ingatlan statisztikák

Eladó családi ház Bodrogkisfalud

Bodrogkisfalud képe
32
Bodrogkisfalud 2. képe
Bodrogkisfalud 3. képe32
60 M Ft
491 721 Ft / m²
122m2
Alapterület
1491m2
Telekterület
6
Szoba
Fix 3%-os Otthon Start lakáshitel
Szobák száma
6
Építés éve
nincs megadva
Ingatlan állapota
Átlagos
Emelet
nincs megadva
Parkolás
nincs megadva
Légkondicionáló
Nincs
Közös költség
nincs megadva
Fűtés
Szén-fa (egyéb)
Fal építési anyaga
nincs megadva
Lift
Nincs
Az ingatlanról:
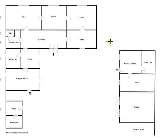
Nyugodt, csendes környezetben, Tokajtól mindössze 9,9 km-re, kb. 15 perc autóútra kínálunk megvételre egy kivételes adottságokkal rendelkező, 122 m²-es családi házat, 1491 m²-es összközműves telken. A ház stabil, masszív szerkezetű: falazata faragott kőből és keresztúri blokkból készült, 15 cm-es szigeteléssel, így energiatakarékos és időtálló.

Főbb jellemzők:

- Hőszigetelt fa nyílászárók szúnyoghálóval és redőnnyel

- Gázkazán és vegyes tüzelésű kazán fűtés, 750 l-es puffer tartállyal

- Klíma, riasztórendszer, fúrt kút

- Konyha alatt pince + borospince

- Kelet-nyugati fekvés, napfényes terek

Helyiségek:

- 5 szoba

- Közlekedő

- Konyha-étkező

- Fürdőszoba-WC

- Mosókonyha-WC

A ház bútorozottan, azonnal költözhető állapotban várja új tulajdonosát. Teljesen tehermentes!

Különálló lakrész:

A telken található egy külön bejáratú lakrész is, amely 1 szobából, konyhából és fürdőszobából áll. Ideális vállalkozás indítására, vendégháznak vagy akár két generáció összeköltözésére.

Külső épületek:

- 2 állásos garázs

- Fedett fa tároló

Ez az ingatlan tökéletes választás mindazoknak, akik csendes, természetközeli környezetben, mégis Tokaj közelségében keresnek otthont vagy befektetési lehetőséget.

Ne hagyja ki – kérjen időpontot megtekintésre még ma!

Egyéb jellemzők:

Villanyáram: Bevezetve (230 Volt).
Vízellátás: Van, saját vízórával.
Csatornázás: Közműhálózatba bekötve.
Gázellátás: Vezetékes gáz.
Kilátás: Udvari.

Töltsd fel ingatlanhirdetésed ingyenesen!

Ingyenes hirdetésfeladás
Havi több mint egymillió ingatlankereső
Egyszerű és gyors hirdetésfeladás
Hirdetésfeladás
eladó
Szőlősi ZsuzsannaIngatlanreferens
+36 70...
iroda logo
Értékes Otthon IngatlanIroda további hirdetései

Töltsd fel ingatlanhirdetésed ingyenesen!

Ingyenes hirdetésfeladás
Havi több mint egymillió ingatlankereső
Egyszerű és gyors hirdetésfeladás
Hirdetésfeladás
Bank360Bank360
Személyi kölcsön
Lakáshitel
Bankszámla
Utasbiztosítás
1 000 000 Ft50 000 000 Ft
6 hónap50 hónap