Ingatlan360 logo
  • Magánszemélyeknek
  • Közvetítőknek
  • Hirdetésfeladás
  • Árak és hirdetési lehetőségek
  • Mennyit ér az ingatlanom?
  • Ingatlan statisztikák

Eladó családi ház Budaörs

Budaörs képe
20
Budaörs 2. képe
Budaörs 3. képe20
261 M Ft
1 838 028 Ft / m²
142m2
Alapterület
752m2
Telekterület
4
Szoba
Szobák száma
4
Építés éve
2024
Ingatlan állapota
Új
Emelet
nincs megadva
Parkolás
nincs megadva
Légkondicionáló
Van
Közös költség
nincs megadva
Fűtés
Padlófűtés
Fal építési anyaga
Tégla
Lift
Nincs
Az ingatlanról:
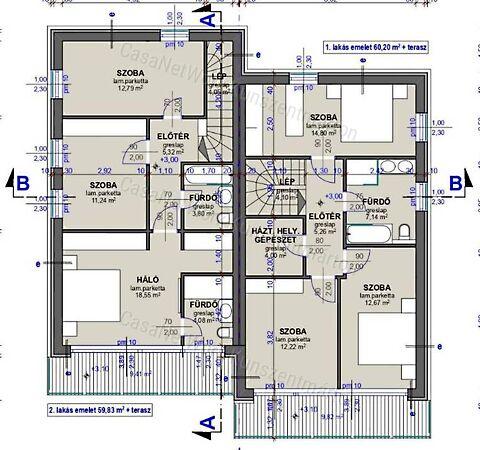
A CasaNetWork Ingatlaniroda megvételre kínálja a Budaörsön lévő 4 szobás, nappalis, téglaépítésű, luxus kivitelű családi házat!A budaörsi luxus ház főbb jellemzői:A Budapest közigazgatási határától 200 méterre helyezkedik el ez a fantsztikus luxus ingatlan a Madár hegy szomszédságában. Csodálatos örökpanoráma tárul elénk (Sasad, Budaörsi repülőtér, Kamaraerdő, Törökbálint) a teraszról, nappaliból vagy az erkélyről gyönyörködve. Ide tényleg csak a böröndöt kell hozni!- a telek nagysága 752 m2- a bruttó alapterület 158 m2 - 2024-ben épült 30-as okostéglából, habarcs mentes, ragasztott tégla válaszfalakkal- az oldalfalak szigetelése Baumit 15 cm grafitos, a tető szigetelése 30 cm-es EPS és Büsser&Hoffman modifikált lemezzel fedett, napkollektor előkészítése kiépítve- a két házrész között 40 cm-es falvastagság, 5 cm kőzetgyapot+Danosa hangszigetelő lemez lett beépítve- a lépcsőkben rezgés csillapítás és hanggátlás lett alkalmazva a maximális kényelem érdekében- az erkélyt és a teraszokat üvegkorát díszíti, az alsószintet köbe pedig mészkő burkolat- fa+alu keretbe záródó luxus Jankó nyílászárók- az alsó szinten motoros zsaluzia, a felsőn Schlotterer motoros redőny, szunyoghálóval ellátva- az épületben mennyezeti hűtés-fűtés+padlófűtés és szintenként 1 db fan-coil lett beépítve a párátlanításra- az OKOS HÁZban a 3X32 Amperes elektromos hálozat biztosítja hogy minden műszaki berendezés mobiltelefonról müködtethető legyen teljes biztonságban- házrészenként 36 m2-es, 2 autó beálására alakalmas fedett kocsibeálló, ahol még elektromos autótöltő is kialakításra kerül- elekromos kapun keresztül jutunk be a viacolorral díszített beállóra- telepített kamera rendszer- az épület hátsó részén lesz a főbejárat, ahol még egy viacoloros teraszt is épít a gondos tulajdonos- csendes, nyugodt utcában található- autóval 3 percre minden elérhető, amire a hétköznapokban szükségünk van- a hideg burkolatokon és a végső simitásokon még lehet változtatni, ha az új tulajdonosnak más elképzelése lenneA két házrész egyben is megvásárolható, így kb 316 m2-es, 8 szobás, 2 nappalis ingatlanunk lehet 598 millió forintos irányáron!!!Amennyiben az 183800263-es számú eladó luxus ház, vagy bármely a kínálatunkban található ingatlan felkeltette érdeklődését, kérem hívjon bizalommal!/A hirdetésben szereplő információk a megbízótól kapott adatok alapján készültek./Irodánk teljes körű szolgáltatással áll ügyfelei rendelkezésére: hitelügyintézés, ügyvédi szolgáltatás, ingatlan értékbecslés, energetikai tanúsítvány készítéseCasaNetWork - Ingatlanban otthon vagyunk!

Töltsd fel ingatlanhirdetésed ingyenesen!

Ingyenes hirdetésfeladás
Havi több mint egymillió ingatlankereső
Egyszerű és gyors hirdetésfeladás
Hirdetésfeladás
eladó
Drégelyvári ÁrpádIngatlanreferens
+36 20...
iroda logo
CasaNetWork KunszentmártonIroda további hirdetései

Töltsd fel ingatlanhirdetésed ingyenesen!

Ingyenes hirdetésfeladás
Havi több mint egymillió ingatlankereső
Egyszerű és gyors hirdetésfeladás
Hirdetésfeladás
Bank360Bank360
Személyi kölcsön
Lakáshitel
Bankszámla
Utasbiztosítás
1 000 000 Ft50 000 000 Ft
6 hónap50 hónap