Ingatlan360 logo
  • Magánszemélyeknek
  • Közvetítőknek
  • Hirdetésfeladás
  • Árak és hirdetési lehetőségek
  • Mennyit ér az ingatlanom?
  • Ingatlan statisztikák

Eladó családi ház Cserkeszőlő

Cserkeszőlő képe
26
Cserkeszőlő 2. képe
Cserkeszőlő 3. képe26
89 M Ft
381 974 Ft / m²
233m2
Alapterület
728m2
Telekterület
6
Szoba
Fix 3%-os Otthon Start lakáshitel
Szobák száma
6
Építés éve
1970
Ingatlan állapota
Új
Emelet
nincs megadva
Parkolás
nincs megadva
Légkondicionáló
Nincs
Közös költség
nincs megadva
Fűtés
Cirkófűtés
Fal építési anyaga
Tégla
Lift
Nincs
Az ingatlanról:
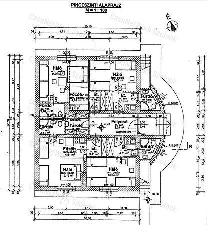
A szolnoki CasaNetWork Ingatlaniroda megvételre kínál egy felújított, több generációs családi házat Jász-Nagykun-Szolnok Vármegye egyik legjelentősebb FÜRDŐVÁROSÁNAK, Cserkeszőlőnek a központjában! Az eladásra kínált családi ház jellemzői:- a Cserkeszőlői Strandfürdő bejáratától 250 méterre található- az épület az 1980-as években épült, teljes körű felújítása 2018-ban keződött, a felújítási munkálatok során a
tartó szerkezeteken kívül minden egyéb szakipari munka magas minőségben és
modern, korszerű anyagokkal lett elvégezve- 728 m2 területű saroktelken áll, mely minden oldalról körbekerített, a terület közművesítése teljes- az ingatlannyilvántartásban "Kivett lakóház, udvar" megnevezéssel szerepel- a két szintre osztott épület szuterén része 110 m2, a magasföldszint 98 m2 nagyságú, összesen 6 modern lakóegység lett kialakítva- rendelkezére álló helyiségek: 6 db hálótér, 4 db konyha, 6 db fürdőszoba, 1 db háztartási helyiség- a WIFI-s termosztáttal szabályozható fűtést kombi gázkazán biztosítja radiátorokkal, a fürdőszobákban padlófűtéssel, ezen kívül vegyes tüzelésű kandalló bekötésére is van lehetőség- az elektromos energiaellátás korszerű, a mai előírásoknak megfelelő elektromos rendszer lett kiépítve (3X32 A), éjszakai árammal, és H tarifás órahellyel, a melegvizet előállító villanybojlerek az éjszakai áramról üzemelnek- a biztonságért a kamerarendszerrel ellátott riasztórendszer gondoskodik, mely minden egységre külön beállítható- a kaputelefon rendszer a kerítésoszlopoknál kiépített áram- és adatkábel kiépítésnek köszönhetően használatra készen áll, a kerítés elektromos kapuval felszerelhető- a padlóburkolatok minden helyiségben minőségi, magas kopásálló kerámia lapok- a konyhabútor minden egységben elkészült, páraelszívóval felszerelve- az udvaron egy 50 m2 nagyságú, elektromos kapuval és riasztóval felszerelt, konyhával és vizesblokkal ellátott GARÁZS épült, melynek egy része alatt 10 m2 nagyságú, szellőzővel és árammal kiépített PINCE húzódik- a garázs mellett az udvaron egy 40 m2-es TERASZ lett kialakítva- az udvar térkővel van lefedve, a parkoló rész pedig gyephézagos téglával van kirakva- az eladásra kínált családi ház rendezett jogi viszonyokkal várja új tulajdonosátHa egy teljeskörűen felújított, tágas, kényelmes otthont keres családja számára, akkor ez az ajánlat Önnek szól!  Amennyiben a fenti eladó családi ház, vagy bármely kínálatunkban található ingatlan felkeltette érdeklődését, kérem hívjon bizalommal!/A hirdetésben szereplő információk a megbízótól kapott adatok alapján készültek./Irodánk teljes körű szolgáltatással áll ügyfelei rendelkezésére: hitelügyintézés, ügyvédi szolgáltatás, ingatlan értékbecslés, energetikai tanúsítvány készítése.CasaNetWork - Ingatlanban otthon vagyunk!

Töltsd fel ingatlanhirdetésed ingyenesen!

Ingyenes hirdetésfeladás
Havi több mint egymillió ingatlankereső
Egyszerű és gyors hirdetésfeladás
Hirdetésfeladás
eladó
Sarkadi NikolettaIngatlanreferens
+36 20...
iroda logo
CasaNetWork SzolnokIroda további hirdetései

Töltsd fel ingatlanhirdetésed ingyenesen!

Ingyenes hirdetésfeladás
Havi több mint egymillió ingatlankereső
Egyszerű és gyors hirdetésfeladás
Hirdetésfeladás
Bank360Bank360
Személyi kölcsön
Lakáshitel
Bankszámla
Utasbiztosítás
1 000 000 Ft50 000 000 Ft
6 hónap50 hónap