Ingatlan360 logo
  • Magánszemélyeknek
  • Közvetítőknek
  • Hirdetésfeladás
  • Árak és hirdetési lehetőségek
  • Mennyit ér az ingatlanom?
  • Ingatlan statisztikák

Eladó családi ház Diósd

Diósd képe
6
Diósd 2. képe
Diósd 3. képe6
210 M Ft
1 438 356 Ft / m²
146m2
Alapterület
611m2
Telekterület
4
Szoba
Szobák száma
4
Építés éve
2026
Ingatlan állapota
Új
Emelet
nincs megadva
Parkolás
1 garázs
Légkondicionáló
Van
Közös költség
nincs megadva
Fűtés
Padlófűtés
Fal építési anyaga
Tégla
Lift
nincs megadva
Az ingatlanról:
Hivatkozzon erre, kód: 5026TSZ

- ÚJ ÉPÍTÉSŰ ÖNÁLLÓ HÁZ

- IGÉNYES KIVITELEZÉS, MINŐSÉGI ANYAGOK

- NAPPALI + 3 SZOBA, 2 FÜRDŐSZOBA, NAGY TERASZ, 1 GK-S GARÁZS

- HŐSZIVATTYÚ PADLÓFŰTÉSSEL

- 4 DB. HŰTŐ-FŰTŐ KLÍMA, ELEKTROMOS REDŐNYÖK, SZÚNYOGHÁLÓK, NAPELEM ELŐKÉSZÍTÉS

Diósdligeten csendes, ősfás környezetben 611m2-es telken nappali + 3 szobás + 1 gk-s garázs, dupla komfortos, nagy teraszos, 145.7m2-es (terasz felével), új építésű családi ház igény szerinti befejezéssel leköthető.

Várható átadás: 2026. nyár.

Megbízható, tőkeerős beruházó, számos referencia ingatlan.

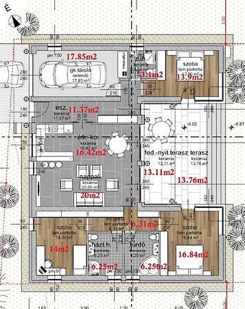
Az ingatlan felosztása a következő (132.29m2 + részben fedett terasz összesen 26.87m2): előtér (11.37m2), zuhanyzó (3.10m2), szoba (13.90m2), konyha – étkező (16.42m2) - nappali (20m2), gardrób-közlekedő (6.31m2), szoba (14m2), háztartási helyiség (6.25m2), fürdő (6.25m2), szoba (16.84m2), garázs (17.85m2).

Szerkezeti leírás: Beton sávalap. Porotherm 30-as tégla falazat + 15cm homlokzati hőszigetelő rendszer. 10-es ytong válaszfalak. A külső nyílászárók, 3 rétegű fokozottan hőszigetelt üvegezésű, bukó – nyíló nyílászárók, kívülről színterezett fóliával ellátva, rejtett redőnytok – elektromos redőnyökkel és szúnyoghálóval beépítve. Lapos tetős fedés, szigetelt vasbeton födém.

Az igény szerinti befejezésnek köszönhetően, egyedi elképzelések alapján kerül birtokba adásra az ingatlan. A beltéri ajtók 80.000,- Ft/db áron, a hideg burkolatok 10.000,- Ft, míg a meleg burkolatokat 8.000,- Ft/m2 áron választhatóak.

Az épület színvonalát és nívóját külső homlokzati fa és kő elemek díszítik.

EXTRÁK: napelem - elektromos autó töltés - kamera - riasztórendszer és központi porszívó előkészítése, 4 db. hűtő-fűtő klíma, elektromos redőnyök, szúnyoghálók, elektromos garázsajtó, fa - és díszkő elemek.

Fűtés: Az ingatlan fűtését hőszivattyús rendszer biztosítja, minden helyiségben padlófűtésen keresztül.

Hűtés: A megfelelő hűs komfortérzetet 4 db. klíma szolgáltatja (szobákban és a nappaliban).

Parkolás: 1 gépkocsi számára alkalmas garázsban lehetséges, illetve viacolorozott fedetlen-felszíni beálló áll rendelkezésre.

Megközelíthetőség és infrastruktúra jó! A busz 725-ös és 727-es járatának megállója 10 perc sétatávolságra található. Óvoda, iskola, bevásárlási lehetőségek szintén a közelben!

További hasolnó ingatlanok találhatók még a kínálatunkban, melyekért keressen bizalommal!

A hirdetésben szereplő adatok, információk, képek, alaprajzok stb... tájékoztató jellegűek! Irodánk az esetleges elírásokért felelősséget nem tud vállalni!

Szüksége van hitelre? SEGÍTÜNK!

Bankfüggetlen hitel tanácsadónk díjmentesen áll az Ön rendelkezésére! Keressen bizalommal!

Tájékoztatjuk a Tisztelt Érdeklődőket, hogy az ingatlan hirdetésében szereplő telefonszám felhívásával Önök hozzájárulnak személyes adataik (név, telefonszám), a hirdetést feladó -Otthonplusz.hu Kft. - által a bizalmas kezeléshez és nyilvántartáshoz.

Töltsd fel ingatlanhirdetésed ingyenesen!

Ingyenes hirdetésfeladás
Havi több mint egymillió ingatlankereső
Egyszerű és gyors hirdetésfeladás
Hirdetésfeladás
eladó
Bakó NobertIngatlanreferens
+36 20...

Töltsd fel ingatlanhirdetésed ingyenesen!

Ingyenes hirdetésfeladás
Havi több mint egymillió ingatlankereső
Egyszerű és gyors hirdetésfeladás
Hirdetésfeladás
Bank360Bank360
Személyi kölcsön
Lakáshitel
Bankszámla
Utasbiztosítás
1 000 000 Ft50 000 000 Ft
6 hónap50 hónap