Ingatlan360 logo
  • Magánszemélyeknek
  • Közvetítőknek
  • Hirdetésfeladás
  • Árak és hirdetési lehetőségek
  • Mennyit ér az ingatlanom?
  • Ingatlan statisztikák

Eladó családi ház Diósd

Diósd képe
17
Diósd 2. képe
Diósd 3. képe17
211,9 M Ft
1 190 449 Ft / m²
178m2
Alapterület
806m2
Telekterület
6
Szoba
Szobák száma
6
Építés éve
nincs megadva
Ingatlan állapota
Új
Emelet
nincs megadva
Parkolás
Udvarban
Légkondicionáló
Nincs
Közös költség
nincs megadva
Fűtés
nincs megadva
Fal építési anyaga
Tégla
Lift
Nincs
Az ingatlanról:
Magas színvonalú kivitelezés – energiatakarékos műszaki tartalom – tágas napfényes tájolás.

Diósd kedvelt részén, eladó 806 m2-es telken épülő nettó 178 m2-es alapterületű családi ház nappali + 5 szoba, 2 gk.garázs, 3 fürdőszoba, teraszok nagy telekkel, A családi ház leköthető, egyedi igények szerint befejezhető.

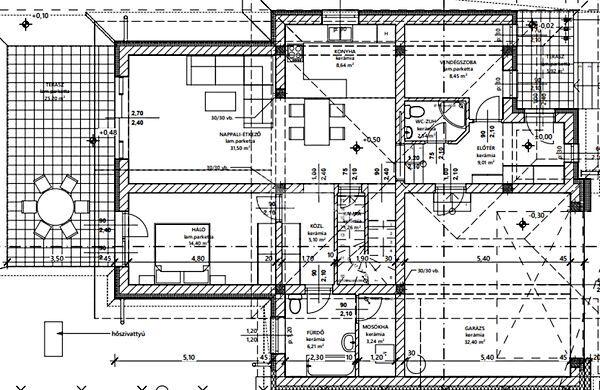
Földszint 122,7m2 + terasz:

• 31.1 m2-es nappali - étkező + 25.2 m2-es fedett terasz
• 14.4 m2-es szoba háló
• 8.45 m2-es szoba vendég
• 8.64 m2-es konyha - 1.26 m2-es kamra
• 11.5 m2-es szoba,
• 6.21 m2-es fürdő + WC
• 2,54 m2-es Wc
• 3,24 m2-es mosókonyha2
• 5.1 m2-es közlekedő
• 9.1 m2-es előszoba + 5,92 m2-es fedett bejárat

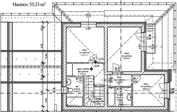
Emelet:
• 13.44 m2-es szoba - háló + 2,29 m2 terasz
• 12.06 m2-es szoba - háló
• 9.00 m2-es szoba - háló
• 4.14 m2-es fürdőszoba WC
• 4.48 m2-es WC
• 5,14 m2-es közlekedő- 4,54 m2 lépcsőtér

Kivitelezés:
A kivitelező cég 15 év óta több mint száz ingatlant épített meg minőségi kivitelezéssel.

Műszaki tartalom:
A ház a mai energiatakarékos műszaki elvárásoknak megfelelően minőségi alapanyagok felhasználásával épül.

• H tarifa, Hőszivattyú, padlófűtés + fan-coil
• A fűtést és a melegvíz ellátást a 14 KW-os Immergas hőszivattyú látja el, meleg - hideg hőellátást a padlófűtéssel kombinált hűtő-fűtő oldal fali berendezés ( fan-coil ) végzi.
• A hőszivattyúhoz kedvezményes " H" tarifás elszámolás tartozik - 23 Ft/KW.
• Az épület szigetelt, vasbeton sávlap alapra épült, 30-as Porotherm tégla tartófalakkal, 10-es vakolt tégla válaszfalakkal.
• A homlokzat 15 cm-es dryvit, az aljzat 10 cm-es lépésálló szigeteléssel készült.
• Tető beton födémmel készült - födém 30 cm-es kőzetgyapot szigeteléssel rendelkezik.
• Fehér, műanyag, több ponton záródó, biztonsági bejárati ajtó.
• Műanyag, fehér, 3 réteg üvegezésű, hő- és hangszigetelt nyílászárók, rejtett redőnytok kívül szinterezett párkányokkal.
• A hideg és meleg burkolatok 7000 Ft/m2. értékben választhatóak.
• Beltéri dekor fóliás ajtók 7 féle színben választhatók.
• Elektromos motorral szerel távirányítós nagykapú térkövezett kocsibeállóval.

Az építkezés 2024 kezdődött 2025 készült el - első negyedévben!

Az ingatlan csendes, aszfaltozott utcában található.

Kedvezményes hiteligénylés, CSOK, BABAVÁRÓ támogatás esetén, kezdeményezheti a kapcsolatfelvételt díjmentesen bankfüggetlen hitelszakértő munkatársunkkal.

Az ingatlan megtekintése előre egyeztetett időpontban lehetséges, akár hétvégén is.
Amennyiben felkeltette az érdeklődését, további kérdéseivel kapcsolatban várom jelentkezését! ...TOVÁBBI, TÖBBEZRES INGATLAN KÍNÁLAT: www.gdn-ingatlan.hu - GDN azonosító: 371006

Töltsd fel ingatlanhirdetésed ingyenesen!

Ingyenes hirdetésfeladás
Havi több mint egymillió ingatlankereső
Egyszerű és gyors hirdetésfeladás
Hirdetésfeladás
eladó
László IstvánIngatlanreferens
+36 30...
iroda logo
GDN IngatlanhálózatIroda további hirdetései

Töltsd fel ingatlanhirdetésed ingyenesen!

Ingyenes hirdetésfeladás
Havi több mint egymillió ingatlankereső
Egyszerű és gyors hirdetésfeladás
Hirdetésfeladás
Bank360Bank360
Személyi kölcsön
Lakáshitel
Bankszámla
Utasbiztosítás
1 000 000 Ft50 000 000 Ft
6 hónap50 hónap