Ingatlan360 logo
  • Magánszemélyeknek
  • Közvetítőknek
  • Hirdetésfeladás
  • Árak és hirdetési lehetőségek
  • Mennyit ér az ingatlanom?
  • Ingatlan statisztikák

Eladó családi ház Dombrád

Dombrád képe
21
Dombrád 2. képe
Dombrád 3. képe21
15 M Ft
187 500 Ft / m²
80m2
Alapterület
577m2
Telekterület
3
Szoba
Fix 3%-os Otthon Start lakáshitel
Szobák száma
3
Építés éve
1960
Ingatlan állapota
Jó állapotú
Emelet
Földszint
Parkolás
Udvarban
Légkondicionáló
Nincs
Közös költség
nincs megadva
Fűtés
Konvektor
Fal építési anyaga
Vályog
Lift
Nincs
Az ingatlanról:
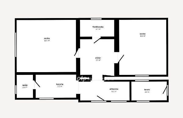
Eladó családi ház Dombrád központjában A két szobás 76 m2 es ingatlan 1960 ban épült terméskő alapra vályog falazattal A tető szerkezetileg kifogástalan héjazata cserepeslemez Az udvarra néző homlokzat 5 cm szigetelést kapott valamint halózva színezve lett Az épület fűtéséről minden szobában gázkonvektor gondoskodik valamint két cserépkályha A kültéri ajtó és ablakok műanyag tokozásúak többrétegű hőszigetelt üveggel A fürdőszobában villanybojler felel a meleg víz előállításáért A ház teljes mértékben közművesített víz gáz villany réz vezeték csatorna A ház hátsó szobája alatt pince található A telek 577 m2 amelyen a ház mögött egy vegyes falazatú melléképület áll Az udvar füvesített ápolt rendezett A környék kifejezetten nyugodt csendes könnyen megközelíthető A háztól 1000 méteren belül található óvoda általános iskola posta buszmegálló valamint több élelmiszer bolt is Ideális lehet fiatalabb idősebb pároknak vagy családok számára Referencia szám: M305974 Pénzügyi tanácsadással hitel ügyintézéssel FalusiCSOK CSOKPlusz Babaváró kedvezményes lakáshitel segítjük ügyfeleinket melyről részletes tájékoztatást adunk OTP Ingatlanpont és OTP Pénzügyi Pont irodáinkban

Töltsd fel ingatlanhirdetésed ingyenesen!

Ingyenes hirdetésfeladás
Havi több mint egymillió ingatlankereső
Egyszerű és gyors hirdetésfeladás
Hirdetésfeladás
eladó
Verba BeátaIngatlanreferens
+36 30...
iroda logo
Nyíregyháza Bocskai utca 18-20 - OTP Ingatlanpont IrodaIroda további hirdetései

Töltsd fel ingatlanhirdetésed ingyenesen!

Ingyenes hirdetésfeladás
Havi több mint egymillió ingatlankereső
Egyszerű és gyors hirdetésfeladás
Hirdetésfeladás
Bank360Bank360
Személyi kölcsön
Lakáshitel
Bankszámla
Utasbiztosítás
1 000 000 Ft50 000 000 Ft
6 hónap50 hónap