Ingatlan360 logo
  • Magánszemélyeknek
  • Közvetítőknek
  • Hirdetésfeladás
  • Árak és hirdetési lehetőségek
  • Mennyit ér az ingatlanom?
  • Ingatlan statisztikák

Eladó családi ház Dunakeszi

Dunakeszi képe
19
Dunakeszi 2. képe
Dunakeszi 3. képe19
349 M Ft
1 332 061 Ft / m²
262m2
Alapterület
709m2
Telekterület
7
Szoba
Szobák száma
7
Építés éve
nincs megadva
Ingatlan állapota
Felújított
Emelet
nincs megadva
Parkolás
1 garázs
Légkondicionáló
Nincs
Közös költség
nincs megadva
Fűtés
Egyéb
Fal építési anyaga
Tégla
Lift
Nincs
Az ingatlanról:
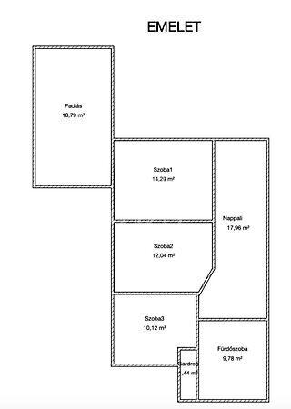
Dunakeszin kínálunk eladásra 2006-ban épült, igényesen kivitelezett, önálló családi házat, 709nm-es telken. Nagyon ízléses és egyedi kialakításának köszönhetően, élhető terek, a hálószobákhoz tartozó gardrób helyiségek, tágas fürdőszobák növelik a komfortot. A földszinten magas minőségben felszerelt konyha, nappali, két szoba, fürdőszoba-gardrób helyiség, az emeleten nappali, három szoba, fürdőszoba kapott helyet. A hangulatos kertben medence, jakuzzi és a ház alatt található borospince fokozza az otthon kényelmét. Az öntöző rendszer fúrt kútról működik, az energiahatékonyságról napelem rendszer gondoskodik.
Ajánlom azoknak akik vágynak a minden igényt kielégítő, tökéletes otthonra, csendes, szép környezetben. ...TOVÁBBI, TÖBBEZRES INGATLAN KÍNÁLAT: www.gdn-ingatlan.hu - GDN azonosító: 388088

Töltsd fel ingatlanhirdetésed ingyenesen!

Ingyenes hirdetésfeladás
Havi több mint egymillió ingatlankereső
Egyszerű és gyors hirdetésfeladás
Hirdetésfeladás
eladó
Karádi KataIngatlanreferens
+36 70...
iroda logo
GDN IngatlanhálózatIroda további hirdetései

Töltsd fel ingatlanhirdetésed ingyenesen!

Ingyenes hirdetésfeladás
Havi több mint egymillió ingatlankereső
Egyszerű és gyors hirdetésfeladás
Hirdetésfeladás
Bank360Bank360
Személyi kölcsön
Lakáshitel
Bankszámla
Utasbiztosítás
1 000 000 Ft50 000 000 Ft
6 hónap50 hónap