Ingatlan360 logo
  • Magánszemélyeknek
  • Közvetítőknek
  • Hirdetésfeladás
  • Árak és hirdetési lehetőségek
  • Mennyit ér az ingatlanom?
  • Ingatlan statisztikák

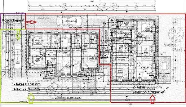
Eladó ikerház Ady Endre, Dunavarsány

Ady Endre, Dunavarsány képe
6
Ady Endre, Dunavarsány 2. képe
Ady Endre, Dunavarsány 3. képe6
91,9 M Ft
1 093 452 Ft / m²
84m2
Alapterület
271m2
Telekterület
4
Szoba
Fix 3%-os Otthon Start lakáshitel
Szobák száma
4
Építés éve
2026
Ingatlan állapota
Új
Emelet
nincs megadva
Parkolás
Udvarban
Légkondicionáló
Nincs
Közös költség
nincs megadva
Fűtés
Padlófűtés
Fal építési anyaga
Tégla
Lift
nincs megadva
Beltér:
Mindkét ingatlan elosztása tökéletesen átgondolt, hogy egy család minden igényét kiszolgálja:
•világos nappali + 3 külön nyíló szoba
•fürdőszoba és külön vendég WC
•praktikus háztartási helyiség és közlekedő
•saját tároló
•nagy, napfényes terasz a közös családi pillanatokhoz
Energiatakarékos, modern megoldások:
A lakások Gree hőszivattyús rendszerrel felszereltek, amely padlófűtést és mennyezeti hűtés-fűtést is biztosít. Az NGBS-vezérlésnek köszönhetően a rendszer teljesen okosan és gazdaságosan üzemeltethető, ráadásul H-tarifáról működik, így a rezsiköltségek hosszú távon is kedvezőek maradnak.

Az otthon kialakításába Ön is beleszólhat:
•hideg-meleg burkolat választható 7.500 Ft/m² értékhatárig
•szaniterek 500.000 Ft értékhatárig
Így biztosan olyan otthon születik, amely tükrözi az Ön stílusát és igényeit.

Töltsd fel ingatlanhirdetésed ingyenesen!

Ingyenes hirdetésfeladás
Havi több mint egymillió ingatlankereső
Egyszerű és gyors hirdetésfeladás
Hirdetésfeladás
eladó
CLD HOME INVEST Kft.Ingatlanreferens
+36 70...

Töltsd fel ingatlanhirdetésed ingyenesen!

Ingyenes hirdetésfeladás
Havi több mint egymillió ingatlankereső
Egyszerű és gyors hirdetésfeladás
Hirdetésfeladás
Bank360Bank360
Személyi kölcsön
Lakáshitel
Bankszámla
Utasbiztosítás
1 000 000 Ft50 000 000 Ft
6 hónap50 hónap