Eladó családi ház Endrefalva
55 M Ft
275 000 Ft / m²
200m2
Alapterület
1000m2
Telekterület
6
Szoba
Szobák száma
6
Építés éve
2003
Ingatlan állapota
Jó állapotú
Emelet
nincs megadva
Parkolás
Nincs
Légkondicionáló
Nincs
Közös költség
nincs megadva
Fűtés
Szén-fa (kazán)
Fal építési anyaga
nincs megadva
Lift
Nincs
Az ingatlanról:
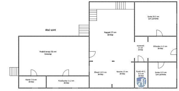
Nógrád megye, Endrefalva, 200 nm-es, 2 szintes, nappali+5 szobás, 2 fürdőszobás, kiváló állapotú, tehermentes családi ház eladó!
Az családi ház 20 éve nyerte el mai formáját, egy kis méretű épület bővítésével.
A minőségi anyagok használatával kialakított kül-és beltér azóta is folyamatosan karbantartott.
Az 56 nm-es, fedett terasz és a hozzá tartozó kiszolgáló helyiségek (raktár és vizesblokk) néhány éve épültek.
A fűtést hagyományos kazán, a meleg víz ellátást villanybojler biztosítja.
Az ingatlanhoz tartozó telek cca, 1000 nm nagyságú, körbekerített, területén vállalkozásra alkalmas felépítmények (2 db raktár, fedett és zárt 130-130 nm), fedett felszíni autóbeálló (45 nm) található.
Budapesti és/vagy salgótarjáni ingatlan beszámítása lehetséges!
Falusi CSOK, Babaváró hitel igényelhető! alacsony fenntartás, csendes utca, prémium anyagok, redőnyözött, terasz, új nyílászárók, udvari gépjárműbeálló lehetőség, melléképület, amerikai konyha, külső hőszigetelés, új villamoshálózat, saját tároló, dekorvilágítás, kertkapcsolat, kamera rendszer, fali dekor burkolat, beépített szekrény
(További képekért és információkért kérem hívjon!)
Az családi ház 20 éve nyerte el mai formáját, egy kis méretű épület bővítésével.
A minőségi anyagok használatával kialakított kül-és beltér azóta is folyamatosan karbantartott.
Az 56 nm-es, fedett terasz és a hozzá tartozó kiszolgáló helyiségek (raktár és vizesblokk) néhány éve épültek.
A fűtést hagyományos kazán, a meleg víz ellátást villanybojler biztosítja.
Az ingatlanhoz tartozó telek cca, 1000 nm nagyságú, körbekerített, területén vállalkozásra alkalmas felépítmények (2 db raktár, fedett és zárt 130-130 nm), fedett felszíni autóbeálló (45 nm) található.
Budapesti és/vagy salgótarjáni ingatlan beszámítása lehetséges!
Falusi CSOK, Babaváró hitel igényelhető! alacsony fenntartás, csendes utca, prémium anyagok, redőnyözött, terasz, új nyílászárók, udvari gépjárműbeálló lehetőség, melléképület, amerikai konyha, külső hőszigetelés, új villamoshálózat, saját tároló, dekorvilágítás, kertkapcsolat, kamera rendszer, fali dekor burkolat, beépített szekrény
(További képekért és információkért kérem hívjon!)
Töltsd fel ingatlanhirdetésed ingyenesen!
Ingyenes hirdetésfeladás
Havi több mint egymillió ingatlankereső
Egyszerű és gyors hirdetésfeladás
Töltsd fel ingatlanhirdetésed ingyenesen!
Ingyenes hirdetésfeladás
Havi több mint egymillió ingatlankereső
Egyszerű és gyors hirdetésfeladás
Személyi kölcsön
Lakáshitel
Bankszámla
Utasbiztosítás
1 000 000 Ft50 000 000 Ft
6 hónap50 hónap