Eladó családi ház Fényeslitke
19,9 M Ft
173 043 Ft / m²
115m2
Alapterület
1063m2
Telekterület
3
Szoba
Szobák száma
3
Építés éve
1965
Ingatlan állapota
nincs megadva
Emelet
nincs megadva
Parkolás
nincs megadva
Légkondicionáló
Nincs
Közös költség
nincs megadva
Fűtés
Cirkófűtés
Fal építési anyaga
nincs megadva
Lift
Nincs
Az ingatlanról:
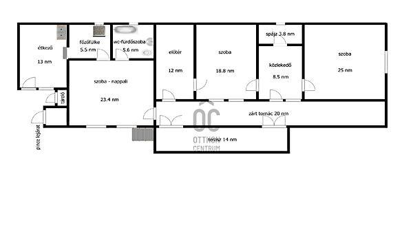
Megvételre kínálok Fényeslitkén, fő utcán de mégis csendes helyen egy, a 60 -as években vályogból épült, hullámpalával fedett családi házat 1063 nm-es, 90! méter utcafronttal rendelkező telken. A részben alápincézett ingatlan belső elrendezése rendhagyó, a szobákat keményfa parkettával illetve laminált padlóval, a wc -fürdőszobát járólappal, az előszobát és az előteret padlószőnyeggel, az étkezőt PVC -vel burkolták burkolták. A nyílászárók még az eredetiek, fából készültek, egy részét azonban már műanyagra cserélték és redőnnyel szerelték fel. A melegről a pincében található vegyes tüzelésű valamint a 2021 -ben cserélt korszerű gázkazán gondoskodik. Az udvaron garázs, ólak és kamra -tároló található.
Fényeslitke eladó családi ház
Az ingatlanról készült videó megtekinthető: https://youtu.be/-kFt4r_bPY4
Villanyáram: van.
Vízellátás: van.
Csatornázás: van.
Gázellátás: van.
Fényeslitke eladó családi ház
Az ingatlanról készült videó megtekinthető: https://youtu.be/-kFt4r_bPY4
Villanyáram: van.
Vízellátás: van.
Csatornázás: van.
Gázellátás: van.
Töltsd fel ingatlanhirdetésed ingyenesen!
Ingyenes hirdetésfeladás
Havi több mint egymillió ingatlankereső
Egyszerű és gyors hirdetésfeladás
Töltsd fel ingatlanhirdetésed ingyenesen!
Ingyenes hirdetésfeladás
Havi több mint egymillió ingatlankereső
Egyszerű és gyors hirdetésfeladás
Személyi kölcsön
Lakáshitel
Bankszámla
Utasbiztosítás
1 000 000 Ft50 000 000 Ft
6 hónap50 hónap
