Ingatlan360 logo
  • Magánszemélyeknek
  • Közvetítőknek
  • Hirdetésfeladás
  • Árak és hirdetési lehetőségek
  • Mennyit ér az ingatlanom?
  • Ingatlan statisztikák

Eladó ikerház Fonyód

Fonyód képe
16
Fonyód 2. képe
Fonyód 3. képe16
184,7 M Ft
1 443 125 Ft / m²
128m2
Alapterület
357m2
Telekterület
4
Szoba
Szobák száma
4
Építés éve
2024
Ingatlan állapota
Új
Emelet
Földszint
Parkolás
Parkoló
Légkondicionáló
Van
Közös költség
nincs megadva
Fűtés
Elektromos
Fal építési anyaga
Tégla
Lift
Nincs
Az ingatlanról:
Egyedi ajánlat a LIDO HOME Balatonboglár Ingatlaniroda kínálatában!
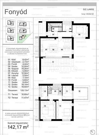
A LIDO HOME Balatonboglár Ingatlaniroda eladásra kínálja FONYÓDON állandóan lakott nyugodt, panorámás családi övezetében, ezt a 128m2-es kétszintes kialakítású luxus Ikerházat a hozzá tartozó saját 357m2-es telekkel.
A LIDO HOME BALATONBOGLÁR Ingatlaniroda által kínált, PANORÁMÁS FONYÓDI LUXUS IKERHÁZ jellemzői:
-A LUXUS IKERHÁZ egy 12 lakásos ZÁRT PRÉMIUM VILLAPARKBAN lesz kialakítva
- DÉL-Nyugati tájolású , PANORÁMÁS IKERHÁZ
- Az egész évben lakható, akár nyaralóként használható ikerház alapterülete128 m2, a hozzá tartozó saját használatú 357 m2 -es telekrésszel
- Beosztása a következő: a földszinten közlekedő, konyha, étkező, nappali ,fürdőszoba mellékhelyiséggel, külön WC, szoba, gépészet , terasz , a felső lakás részen közlekedő, 3 szoba, 2 fürdőszoba mellékhelyiséggel, gardrób valamint egy terasz lesz kialakítva
-Az épület formavilága kifejezetten kellemes, modern hatást kelt, a földszinti lakások gyönyörű fákkal tarkított közvetlen kert kapcsolattal fognak rendelkezni
-Az emeleti lakások terasza pompás kilátást biztosít
-Az épület levegős hőszivattyú segítségével lesz klimatizálva, a vasbeton födémekben kialakított felületfűtés megoldásával. A felület fűtés/hűtés jelentősen komfortosabb hőérzetet ad, úgy a nyári hónapokban mint a fűtési szezonban
- Az ár magában foglalja a Lakópark zárt területén belül elhelyezkedő, kültéri beállóhely, tároló valamint a hozzá tartozó 382m2-es telekrész önálló használatát
-A luxus megjelenésű, sarokterületen megvalósuló házak rövid autó úttal valamint kerékpárral percek alatt megközelíthető Csisztafürdőtől nem messze fog elhelyezkedni
Az ikerházak modern jelleme, ideális méretű terasza, PANORÁMÁS kilátása, minőségi kivitelezése teszi kiemelten vonzóvá! Kifejezetten ajánlom olyan családok részére, akik nyugodt, hangulatos környezetben szeretnének egy ikerházat lakhatásra, pihenésre vagy kikapcsolódásra. Befektetésnek is kiváló lehetőség, paramétereit tekintve egyedi ajánlat a településről!
LIDO HOME- Ingatlanok egy életen át !

Töltsd fel ingatlanhirdetésed ingyenesen!

Ingyenes hirdetésfeladás
Havi több mint egymillió ingatlankereső
Egyszerű és gyors hirdetésfeladás
Hirdetésfeladás
eladó
Szekeres ImrénéIngatlanreferens
+36 70...
iroda logo
Lido Home BalatonboglárIroda további hirdetései

Töltsd fel ingatlanhirdetésed ingyenesen!

Ingyenes hirdetésfeladás
Havi több mint egymillió ingatlankereső
Egyszerű és gyors hirdetésfeladás
Hirdetésfeladás
Bank360Bank360
Személyi kölcsön
Lakáshitel
Bankszámla
Utasbiztosítás
1 000 000 Ft50 000 000 Ft
6 hónap50 hónap