Ingatlan360 logo
  • Magánszemélyeknek
  • Közvetítőknek
  • Hirdetésfeladás
  • Árak és hirdetési lehetőségek
  • Mennyit ér az ingatlanom?
  • Ingatlan statisztikák

Eladó családi ház Eperjes, Gödöllő

Eperjes, Gödöllő képe
20
Eperjes, Gödöllő 2. képe
Eperjes, Gödöllő 3. képe20
116,9 M Ft
899 231 Ft / m²
130m2
Alapterület
500m2
Telekterület
3
Szoba
Fix 3%-os Otthon Start lakáshitel
Szobák száma
3
Építés éve
nincs megadva
Ingatlan állapota
Felújított
Emelet
nincs megadva
Parkolás
Udvarban
Légkondicionáló
Nincs
Közös költség
nincs megadva
Fűtés
Cirkófűtés
Fal építési anyaga
Tégla
Lift
Nincs
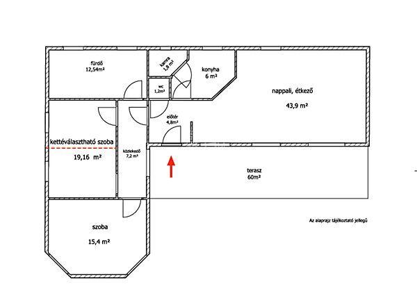
Az ingatlanról:
Eladásra kínálok Gödöllő kertvárosi részén egy önálló, felújított (2024.) családi házat.
Felosztása: amerikai konyhás nappali, 2 hálószoba, előtér, nagy méretű fürdőszoba mosdóval, különálló mosdó, spájz.
Mindezt 60 nm fedett terasz szegélyezi.

A házhoz 500 nm saját kert tartozik, az utcafront felől, előkerttel helyezkedik el. Az eredeti nagy méretű telek hátsó részén, egy nyaktaggal csatlakozó (ikresített) másik ház keül megépítésre, amely szintén önálló udvarral fog rendelkezni. és 4 méter széleskocsibejáró a megvételre kínált ház hátljánál fog húzódni, így biztosítva az intimitást.

Falazata 30-as téglából készült, amelyre 5cm dryvit került, az ablakok 3 rétegű favázas thermo üvegesek, elektromos redőnyökkel felszereltek, tetőszerkezete agyag cseréppel fedett, a födém szigetelve van.

Felújítása során prémium minőségű burkolatok, új nyílászárók, víz- és villanyvezetékek (+elosztódoboz) kerültek beépítésre. Az alap- és a szerelőbeton újra lett öntve, az aljzatot pedig 12cm vastag szigeteléssel, hőtükrös fóliával látták el. Falakat újra glettelték, festették és a helyiségek beépített gipszkarton állmennyezetet is kaptak LED világítással.

Fűtés: gázkazán
Melegvíz ellátás: villanybojler 120 l nagyságú.

Extrák:
- kamerarendszer
- riasztó
- 4 db klíma (2*6 és 2*3,5 kw)
- gondozásmentes alumínium kerítés, elektromos kapuval.
- locsolórendszer.

Mind autóval, mind gyalog kivló közlekedéssel bír.
Közelben bolt, iskola, óvoda, parkok, és minden, ami a mindennapi életvitelhez szükséges!

Birtokbavétel rövid határidővel!
Tekintsük meg együtt! ...TOVÁBBI, TÖBBEZRES INGATLAN KÍNÁLAT: www.gdn-ingatlan.hu - GDN azonosító: 391628

Töltsd fel ingatlanhirdetésed ingyenesen!

Ingyenes hirdetésfeladás
Havi több mint egymillió ingatlankereső
Egyszerű és gyors hirdetésfeladás
Hirdetésfeladás
eladó
Nagy BarbaraIngatlanreferens
+36 70...
iroda logo
GDN IngatlanhálózatIroda további hirdetései

Töltsd fel ingatlanhirdetésed ingyenesen!

Ingyenes hirdetésfeladás
Havi több mint egymillió ingatlankereső
Egyszerű és gyors hirdetésfeladás
Hirdetésfeladás
Bank360Bank360
Személyi kölcsön
Lakáshitel
Bankszámla
Utasbiztosítás
1 000 000 Ft50 000 000 Ft
6 hónap50 hónap