Ingatlan360 logo
  • Magánszemélyeknek
  • Közvetítőknek
  • Hirdetésfeladás
  • Árak és hirdetési lehetőségek
  • Mennyit ér az ingatlanom?
  • Ingatlan statisztikák

Eladó családi ház Holló, Hajdúsámson

Holló, Hajdúsámson képe
5
Holló, Hajdúsámson 2. képe
Holló, Hajdúsámson 3. képe5
71 M Ft
612 069 Ft / m²
116m2
Alapterület
350m2
Telekterület
4
Szoba
Fix 3%-os Otthon Start lakáshitel
Szobák száma
4
Építés éve
nincs megadva
Ingatlan állapota
Új
Emelet
nincs megadva
Parkolás
1 garázs
Légkondicionáló
Nincs
Közös költség
nincs megadva
Fűtés
Egyéb
Fal építési anyaga
Tégla
Lift
nincs megadva
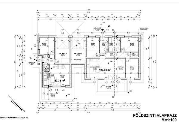
Az ingatlanról:
Debrecen táblától 5 km-re Sámson-kertben, központhoz közel új építésű iker családi ház épül!

Jellemzők:
- nappali+4 szoba
- háztartási helyiség
- gardrób
- 116 nm+16,25 nm terasz és +16,5 nm garázs
- nagy előszoba
- ablakos, nagy fürdő szoba
- külön wc
- 2 szintes
- nincs közvetlen falkapcsolat
- telek cca 350 nm. Ára: 8 M.
- hőszivattyús fűtés, de a gáz is opció

Lábazat: antracit lábazati gyöngyvakolat.
Homlokzat: hőszigetelő rendszer tört fehér színű nemes vakolattal.
Nyílászárók: 7 légkamrás, műanyag nyílászárók, fehér színben, 3 rtg-ű hőszigetelt üvegezéssel és fehér szekcionált garázskapu.
Tetőhéjazat: beton cserépfedés antracit színben.
Párkányok: csiszolt fagyálló kő ablakpárkány.
Kémény: szerelt légbeszívó/füstcső antracit színben

Az ingatlan, kertvárosias lakóövezetben helyezkedik el. Az építési telek síknak mondható.
A tervezett lakóépület nem akadályozza a szomszédos ingatlanok és építmények, önálló rendeltetési egységek rendeltetésszerű és biztonságos használhatóságát.

Méreteivel, elhelyezésével, építészeti kialakításával illeszkedik a környezet és a környező beépítés adottságaihoz.

Az építmény elhelyezési módja, beépítési magassága, homlokzata, tetőzete és azok kialakítása lehetővé teszi a településkép és a környezet előnyösebb kialakítását, a táj és településkép értékeinek érvényesülését. Építészeti megoldásával hozzájárul a táj- és a településkép esztétikus alakításához.

Közművek: a telek gáz és elektromos árammal az utcai közüzemi hálózatokról ellátható. A vízellátás házi vízművel lesz biztosítva. A szennyvíz zárt szennyvíztárolóba lesz vezetve.

Tervezett átadás, a szerződéskötéstől számítva: 10-12 hónap
Ütemezett fizetési lehetőség!
Ingyenes hitel ügyintést vállaljuk!
Helyszín megtekintéssel kapcsolatban keressen bizalommal, akár hétvégén is!
Babavárót, Csok-ot, hitelt intézzük!

Ár: 71.000.000.- +8.000.000.- Ft a telek.

Érd: 06-30-9358-700

Töltsd fel ingatlanhirdetésed ingyenesen!

Ingyenes hirdetésfeladás
Havi több mint egymillió ingatlankereső
Egyszerű és gyors hirdetésfeladás
Hirdetésfeladás
eladó
Karacs IldikóIngatlanreferens
+36 30...
iroda logo
Hamar Estate Business Kft.Iroda további hirdetései

Töltsd fel ingatlanhirdetésed ingyenesen!

Ingyenes hirdetésfeladás
Havi több mint egymillió ingatlankereső
Egyszerű és gyors hirdetésfeladás
Hirdetésfeladás
Bank360Bank360
Személyi kölcsön
Lakáshitel
Bankszámla
Utasbiztosítás
1 000 000 Ft50 000 000 Ft
6 hónap50 hónap