Ingatlan360 logo
  • Magánszemélyeknek
  • Közvetítőknek
  • Hirdetésfeladás
  • Árak és hirdetési lehetőségek
  • Mennyit ér az ingatlanom?
  • Ingatlan statisztikák

Eladó családi ház Hódmezővásárhely

Hódmezővásárhely képe
18
Hódmezővásárhely 2. képe
Hódmezővásárhely 3. képe18
55 M Ft
550 000 Ft / m²
100m2
Alapterület
761m2
Telekterület
3
Szoba
Fix 3%-os Otthon Start lakáshitel
Szobák száma
3
Építés éve
1990
Ingatlan állapota
Átlagos
Emelet
nincs megadva
Parkolás
Nincs
Légkondicionáló
Nincs
Közös költség
nincs megadva
Fűtés
Gáz (egyedi)
Fal építési anyaga
nincs megadva
Lift
Nincs
Az ingatlanról:
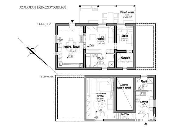
Hódmezővásárhelyen, Újkishomokon eladó egy épületben található két külön bejáratú lakóegységgel rendelkező családi ház.
Az ~59,00 m2 hasznos alapterületű ingatlant 2019-ben újították fel. Új külső hőszigetelő nyílászárók kerültek beépítésre, és felújításra került a konyha is. A fürdőszobát is ekkor újították fel, új burkolatokkal és szaniterekkel, valamint új Ariston vízmelegítő került beépítésre.
A ~41,00 m2 alapterületű lakóegység 2021.-ben kapta meg a mai arculatát. Itt is új külső nyílászárók kerültek beépítésre. Új a fürdőszoba és a konyha helyiség. Az itt található 24 m2 területű szoba szuterén szinten helyezkedik el. (lásd : alaprajzok)
A két lakrész összenyitható, a gardrób helyiség átalakításával, lépcső beépítésével.
Befektetésnek is jó választás, jelenlegi állapotban, azonnal kiadható két külön ingatlanként.
A szegedi bejárás autóval 15 percet vesz igénybe, Vásárhely belváros autóval 10 perc.

Néhány információ az ingatlanról, ami segíthet a döntésben:
-Telek területe: 761 m2
-Fedett terasz: ~21,00 m2
-Konvektoros fűtés
-Elektromos vízmelegítők
-Mobil garázs
-2 x 16 A

1.Lakóegység alapterülete: ~59,00 m2
-Nappali: ~15,00 m2
-Konyha-Étkező: ~22,00m2
-Szoba: ~8,00 m2
-Fürdő: ~8,00 m2 (kád, tusoló, mosdó, wc)
-Gardrób: ~5,00 m2

2. Lakóegység alapterülete: ~41,00 m2
-Szoba: ~24,00 m2
-Konyha: ~10,00 m2
-Fürdő: ~ 5,00 m2 ( tusoló, wc, mosdó)

Az ingatlannal kapcsolatos kérdéseivel várom hívását, a hét bármely napján.
Ügyfeleink számára irodánk teljes jogi hátteret, adás-vétellel kapcsolatos térítésmentes jogi tanácsadást biztosít.
Bank semleges hitelügyintézéssel, díjmentes hitelszűréssel és tanácsadással is hozzájárulunk, hogy megtalálja az ön számára legkedvezőbb megoldást. alacsony fenntartás, csendes utca, terasz, új nyílászárók, zöld övezet, amerikai konyha, gardrób
(További képekért és információkért kérem hívjon!)

Töltsd fel ingatlanhirdetésed ingyenesen!

Ingyenes hirdetésfeladás
Havi több mint egymillió ingatlankereső
Egyszerű és gyors hirdetésfeladás
Hirdetésfeladás
eladó
Sárai-Kovács ÁgnesIngatlanreferens
+36 30...
iroda logo
Városi IngatlanirodaIroda további hirdetései

Töltsd fel ingatlanhirdetésed ingyenesen!

Ingyenes hirdetésfeladás
Havi több mint egymillió ingatlankereső
Egyszerű és gyors hirdetésfeladás
Hirdetésfeladás
Bank360Bank360
Személyi kölcsön
Lakáshitel
Bankszámla
Utasbiztosítás
1 000 000 Ft50 000 000 Ft
6 hónap50 hónap