Ingatlan360 logo
  • Magánszemélyeknek
  • Közvetítőknek
  • Hirdetésfeladás
  • Árak és hirdetési lehetőségek
  • Mennyit ér az ingatlanom?
  • Ingatlan statisztikák

Eladó családi ház Debrecen

Debrecen képe
28
Debrecen 2. képe
Debrecen 3. képe28
119,9 M Ft
666 111 Ft / m²
180m2
Alapterület
1170m2
Telekterület
6
Szoba
Fix 3%-os Otthon Start lakáshitel
Szobák száma
6
Építés éve
1987
Ingatlan állapota
Jó állapotú
Emelet
nincs megadva
Parkolás
2 vagy több garázs
Légkondicionáló
Nincs
Közös költség
nincs megadva
Fűtés
Gáz (cirkó)
Fal építési anyaga
Tégla
Lift
nincs megadva
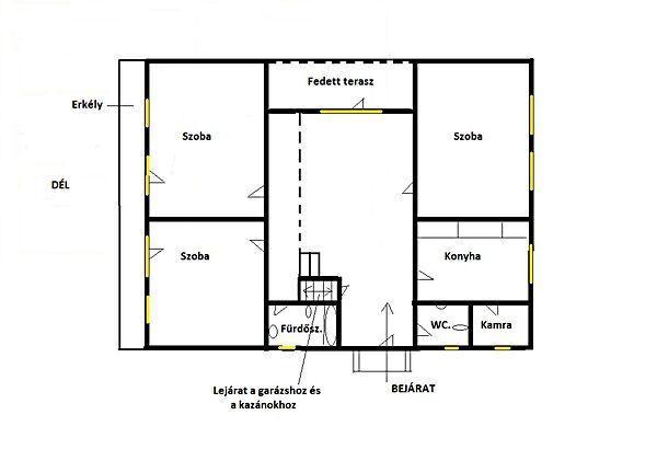
Az ingatlanról:
Debrecen, Alsó- Józsa, a Tokaji utca, a Józsa-Liget közelében, eladó ez a két külön bejáratú, két generációs, két szintes nagy ház, ( külön mérhető közművekkel,) két garázzsal, összközműves 1170 nm-es telken. Az alsó szint tartalmaz, mely 100 nm-es: Három különnyíló nagy szoba, nappali-étkező, innen nyílóan egy nagy fedett terasszal, kádas fürdőszoba WC-vel, külön WC. kézmosóval, konyha, kamra, előszoba. A burkolatok: jó minőségű fa parketták, régebbi csempék. Erről a szintről le lehet menni a garázsba, tovább egy tároló helységbe, és itt található a vegyes- és gáz tüzelésű kazán. A felső szint 1997-ben lett kialakítva, kb.: 80 nm-es, tartalmaz: saját, zárt lépcsőház, nagy nappali, étkező konyha, külön WC., sarokkádas fürdőszoba, itt saját gáz kazánnal, kettő külön nyíló szoba, az egyikből a fedett teraszra kijárattal. A burkolatok: laminált parketta, járólap. A felső szint azonnal költözhető. Az udvaron van egy külön álló masszív melléképület, itt garázs, és tároló. A ház egyik oldala hőszigetelt, Észak-Déli fekvésű. Előre egyeztetett időpontban megtekinthető. Kiváló lehet két generációnak, szállás kiadásra befektetésnek, vagy akár munkás szállónak is! Tehermentes, további képeket tudok küldeni, de ezt látni kell!

Töltsd fel ingatlanhirdetésed ingyenesen!

Ingyenes hirdetésfeladás
Havi több mint egymillió ingatlankereső
Egyszerű és gyors hirdetésfeladás
Hirdetésfeladás
eladó
Nagy IbolyaIngatlanreferens
+36 30...

Töltsd fel ingatlanhirdetésed ingyenesen!

Ingyenes hirdetésfeladás
Havi több mint egymillió ingatlankereső
Egyszerű és gyors hirdetésfeladás
Hirdetésfeladás
Bank360Bank360
Személyi kölcsön
Lakáshitel
Bankszámla
Utasbiztosítás
1 000 000 Ft50 000 000 Ft
6 hónap50 hónap