Ingatlan360 logo
  • Magánszemélyeknek
  • Közvetítőknek
  • Hirdetésfeladás
  • Árak és hirdetési lehetőségek
  • Mennyit ér az ingatlanom?
  • Ingatlan statisztikák

Eladó családi ház Szilfa, Jakabszállás

Szilfa, Jakabszállás képe
4
Szilfa, Jakabszállás 2. képe
Szilfa, Jakabszállás 3. képe4
78,9 M Ft
974 074 Ft / m²
81m2
Alapterület
644m2
Telekterület
4
Szoba
Fix 3%-os Otthon Start lakáshitel
Szobák száma
4
Építés éve
2026
Ingatlan állapota
Új
Emelet
Földszint
Parkolás
nincs megadva
Légkondicionáló
Nincs
Közös költség
nincs megadva
Fűtés
Cirkófűtés
Fal építési anyaga
Tégla
Lift
Nincs
Az ingatlanról:
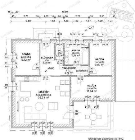
81 m2 es nappali 3 szobás új építésű ház Jakabszálláson Az ár tartalmazza a telek árát is Jellemzői: telek 644 m2 lakótér 81 m2 10 m2 térkövezett terasz gáz cirkó fűtés Bosch 2300 kazánnal padlófűtés 2 klíma Porotherm főfalak 10 cm es tégla válaszfalak belső Fa födémszerkezet láng és gombamentesítő anyaggal kezelve Cserép tetőfedés Műanyag bukó nyíló nyílászárók 3 rétegű 6 légkamrás biztonsági bejárati ajtó redőny szúnyogháló 15 cm EPS homlokzati hőszigetelés 2026 decemberi átadás A hirdetésben szereplő fotók egy referenciaházban készültek ​ A tulajdonos kérésére az ingatlan bemutatása egy személyes konzultáció után történik ahol részletes tájékoztatást kaphat az ingatlan paramétereiről és egyéb kényelmi szolgáltatásairól Figyelem az adatlap megbízónktól kapott adatok alapján készült pontosságáért felelősséget nem tudunk vállalni Az iroda legfrissebb aktuális kínálatát a HOUSE36 saját weboldalán találja

Töltsd fel ingatlanhirdetésed ingyenesen!

Ingyenes hirdetésfeladás
Havi több mint egymillió ingatlankereső
Egyszerű és gyors hirdetésfeladás
Hirdetésfeladás
eladó
Bagó DiánaIngatlanreferens
+36 70...
iroda logo
HOUSE36 IngatlanhálózatIroda további hirdetései

Töltsd fel ingatlanhirdetésed ingyenesen!

Ingyenes hirdetésfeladás
Havi több mint egymillió ingatlankereső
Egyszerű és gyors hirdetésfeladás
Hirdetésfeladás
Bank360Bank360
Személyi kölcsön
Lakáshitel
Bankszámla
Utasbiztosítás
1 000 000 Ft50 000 000 Ft
6 hónap50 hónap