Ingatlan360 logo
  • Magánszemélyeknek
  • Közvetítőknek
  • Hirdetésfeladás
  • Árak és hirdetési lehetőségek
  • Mennyit ér az ingatlanom?
  • Ingatlan statisztikák

Eladó ikerház Jánossomorja

Jánossomorja képe
13
Jánossomorja 2. képe
Jánossomorja 3. képe13
86 M Ft
988 391 Ft / m²
87m2
Alapterület
770m2
Telekterület
4
Szoba
Fix 3%-os Otthon Start lakáshitel
Szobák száma
4
Építés éve
1974
Ingatlan állapota
Felújított
Emelet
nincs megadva
Parkolás
nincs megadva
Légkondicionáló
Nincs
Közös költség
nincs megadva
Fűtés
nincs megadva
Fal építési anyaga
nincs megadva
Lift
Nincs
Az ingatlanról:
Felújított, 4 szobás családi ház eladó!

Leírás: Kiváló lehetőség az osztrák határ közelében! Jánossomorja központjához közel, csendes utcában kínáljuk eladásra ezt a bruttó 100 m2-es, kétszintes, rendkívül alacsony fenntartási költségű sorházat.

Műszaki tartalom és felújítás (2019-től): Az ingatlan esztétikai és műszaki megújuláson esett át. Kicserélték a vezetékeket (víz, villany), új burkolatokat kapott, és a falak szigetelése is megtörtént. A fűtést modern gázkazán és hűtő-fűtő klíma biztosítja, a nyílászárók pedig prémium, 7 kamrás műanyag kivitelűek redőnnyel szerelve.

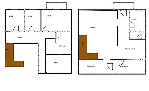
Elosztás:

Földszint: Világos konyha-étkező, tárolószoba, fedett terasz, tágas nappali és fürdő-WC.

Emelet: 3 kényelmes hálószoba, galéria és egy második, zuhanyzós fürdőszoba. Két szobához saját erkély is tartozik!

Kert és extrák: A 770 m2-es telek két utcáról is megközelíthető. Az udvarban garázs és tároló található. A kert öntözése vert kútról megoldott, így a parkosított környezet fenntartása is gazdaságos.

Ideális választás ingázóknak, nagycsaládosoknak vagy az idősebb generációnak, akiknek fontos a biztonság és a minőség.

Vegye fel velem a kapcsolatot: Attila – Moving Home

Töltsd fel ingatlanhirdetésed ingyenesen!

Ingyenes hirdetésfeladás
Havi több mint egymillió ingatlankereső
Egyszerű és gyors hirdetésfeladás
Hirdetésfeladás
eladó
GIngatlanreferens
+36 30...

Töltsd fel ingatlanhirdetésed ingyenesen!

Ingyenes hirdetésfeladás
Havi több mint egymillió ingatlankereső
Egyszerű és gyors hirdetésfeladás
Hirdetésfeladás
Bank360Bank360
Személyi kölcsön
Lakáshitel
Bankszámla
Utasbiztosítás
1 000 000 Ft50 000 000 Ft
6 hónap50 hónap