Ingatlan360 logo
  • Magánszemélyeknek
  • Közvetítőknek
  • Hirdetésfeladás
  • Árak és hirdetési lehetőségek
  • Mennyit ér az ingatlanom?
  • Ingatlan statisztikák

Eladó családi ház Vásárhelyi Pál, Jászfényszaru

Vásárhelyi Pál, Jászfényszaru képe
12
Vásárhelyi Pál, Jászfényszaru 2. képe
Vásárhelyi Pál, Jászfényszaru 3. képe12
27,9 M Ft
336 145 Ft / m²
83m2
Alapterület
982m2
Telekterület
3
Szoba
Fix 3%-os Otthon Start lakáshitel
Szobák száma
3
Építés éve
1970
Ingatlan állapota
Jó állapotú
Emelet
Földszint
Parkolás
Parkolóház
Légkondicionáló
Nincs
Közös költség
nincs megadva
Fűtés
Cirkófűtés
Fal építési anyaga
Vályog
Lift
Nincs
Az ingatlanról:
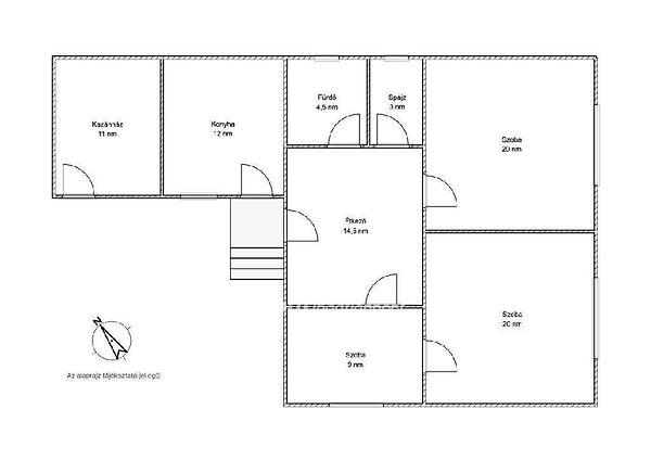
Eladó családi ház Jászfényszarun tágas otthon nagy kerttel Jászfényszarun nyugodt és barátságos környezetben eladó egy 83 nm es családi ház amely kényelmes otthont nyújt családok számára A ház praktikus elrendezésű: két és fél szoba étkező fürdőszoba kamra és egy külön bejáratú konyha biztosítja a mindennapi kényelmet Az ingatlan központi fűtéses a radiátoros hőleadók biztosítják a kellemes meleget A 11 nm es kazánházban egy gázkazán és egy vegyestüzelésű kazán is működik így a fűtés többféle módon megoldható az igényekhez igazítva A 982 nm es telken jó állapotú melléképületek találhatók amelyek állattartásra is kiválóan alkalmasak valamint egy 20 nm es különálló garázs biztosítja a parkolási lehetőséget A gondozott kertben gyümölcsfák teremnek és a fúrt kút segítségével egyszerűen gondoskodhat a locsolásról Ha egy tágas jól karbantartott otthont keres nagy kerttel és számos lehetőséggel ne hagyja ki ezt az ajánlatot Hívjon bizalommal és tekintse meg személyesen

Töltsd fel ingatlanhirdetésed ingyenesen!

Ingyenes hirdetésfeladás
Havi több mint egymillió ingatlankereső
Egyszerű és gyors hirdetésfeladás
Hirdetésfeladás
eladó
Törökné Gazsi IvettIngatlanreferens
+36 70...
iroda logo
Jászberény Szentháromság tér 2 - OTP Ingatlanpont IrodaIroda további hirdetései

Töltsd fel ingatlanhirdetésed ingyenesen!

Ingyenes hirdetésfeladás
Havi több mint egymillió ingatlankereső
Egyszerű és gyors hirdetésfeladás
Hirdetésfeladás
Bank360Bank360
Személyi kölcsön
Lakáshitel
Bankszámla
Utasbiztosítás
1 000 000 Ft50 000 000 Ft
6 hónap50 hónap