Ingatlan360 logo
  • Magánszemélyeknek
  • Közvetítőknek
  • Hirdetésfeladás
  • Árak és hirdetési lehetőségek
  • Mennyit ér az ingatlanom?
  • Ingatlan statisztikák

Eladó családi ház Jászfényszaru

Jászfényszaru képe
17
Jászfényszaru 2. képe
Jászfényszaru 3. képe17
64,9 M Ft
295 000 Ft / m²
220m2
Alapterület
840m2
Telekterület
3
Szoba
Fix 3%-os Otthon Start lakáshitel
Szobák száma
3
Építés éve
1980
Ingatlan állapota
Jó állapotú
Emelet
Földszint
Parkolás
Parkolóház
Légkondicionáló
Nincs
Közös költség
nincs megadva
Fűtés
Cirkófűtés
Fal építési anyaga
Tégla
Lift
Nincs
Az ingatlanról:
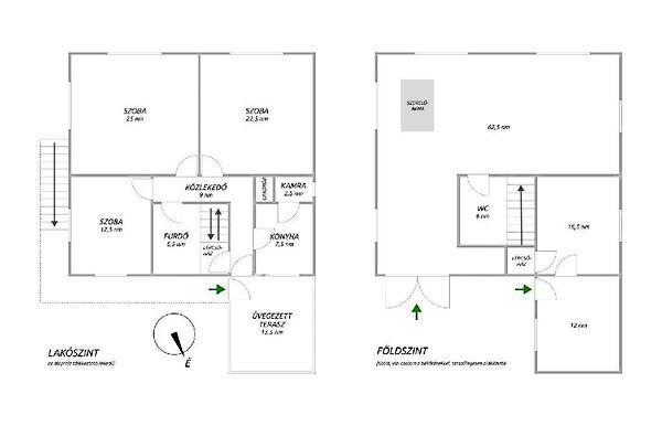
Jász Nagykun Szolnok vármegye Jászfényszaru kétszintes részben felújított családi ház eladó Jászfényszaru központi mégis csendes utcájában kínálok megvételre egy 110 nm es kétszintes tégla építésű családi házat amely rengeteg lehetőséget rejt magában Az emeleti lakótérben három kényelmes szoba konyha kamra fürdőszoba közlekedő és egy hangulatos fedett terasz található A földszinti rész jelenleg műhelyként és garázsként funkcionál azonban kialakításának köszönhetően könnyedén átalakítható külön bejáratú lakássá irodává vagy akár üzlethelyiséggé is Az ingatlan 10 cm es hőszigeteléssel rendelkezik tetőszerkezete cserép borítású Az elmúlt években több ponton megújult: új tetőszerkezetet külső szigetelést és modern nyílászárókat kapott továbbá új villamos hálózat ipari áram és térkövezett udvar is növeli értékét A fűtésről gázkazán vegyestüzelésű kazán és hűtő fűtő klíma gondoskodik így az otthon minden évszakban kellemes hőmérsékletet biztosít Ez a ház tökéletes választás mindazoknak akik tágas jól alakítható otthont keresnek nyugodt környezetben ugyanakkor céges hasznosításra is kiválóan alkalmas Ingatlanvásárláshoz az OTP Bank kedvező hitelkonstrukcióit ajánlom Kérem hívjon bizalommal készséggel tájékoztatom a részletekről Érdeklődni: Ádám Krisztina 06305135487

Töltsd fel ingatlanhirdetésed ingyenesen!

Ingyenes hirdetésfeladás
Havi több mint egymillió ingatlankereső
Egyszerű és gyors hirdetésfeladás
Hirdetésfeladás
eladó
Ádám KrisztinaIngatlanreferens
+36 30...
iroda logo
Jászberény Szentháromság tér 2 - OTP Ingatlanpont IrodaIroda további hirdetései

Töltsd fel ingatlanhirdetésed ingyenesen!

Ingyenes hirdetésfeladás
Havi több mint egymillió ingatlankereső
Egyszerű és gyors hirdetésfeladás
Hirdetésfeladás
Bank360Bank360
Személyi kölcsön
Lakáshitel
Bankszámla
Utasbiztosítás
1 000 000 Ft50 000 000 Ft
6 hónap50 hónap