Ingatlan360 logo
  • Magánszemélyeknek
  • Közvetítőknek
  • Hirdetésfeladás
  • Árak és hirdetési lehetőségek
  • Mennyit ér az ingatlanom?
  • Ingatlan statisztikák

Eladó ikerház Központ vonzásában Nappali+3, Kakucs

Központ vonzásában Nappali+3, Kakucs képe
12
Központ vonzásában Nappali+3, Kakucs 2. képe
Központ vonzásában Nappali+3, Kakucs 3. képe12
97 M Ft
1 077 667 Ft / m²
90m2
Alapterület
450m2
Telekterület
4
Szoba
Fix 3%-os Otthon Start lakáshitel
Szobák száma
4
Építés éve
nincs megadva
Ingatlan állapota
Újszerű
Emelet
nincs megadva
Parkolás
Udvarban
Légkondicionáló
Nincs
Közös költség
nincs megadva
Fűtés
Cirkófűtés
Fal építési anyaga
Tégla
Lift
Nincs
Az ingatlanról:
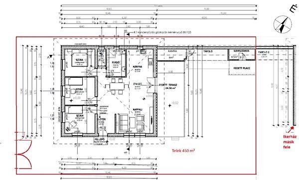
Megvételre kínálunk Pest vármegyében, az M5 autópálya vonzásában, Kakucs település jó megközelítésű de mégis nyugodt környezetében, egy nettó 90,31 nm-es, Nappali+ 3 hálószobás ikerházat.
Az ingatlan 450nm-es ideális méretű fenntartható telken 2022-ben épült B30-‎Porotherm téglából,10cm-es homlokzati szigeteléssel, 3 rétegű nyílászárókkal, és minőségi cseréptetővel.
Az épület a hátsó telken lévő szomszédos házzal, egy félig fedett tárolón keresztül (15m-es hosszban) van összekapcsolva és mindkét telekrész külön helyrajzi számon szerepel.

Helyiségek:
➡ Nappali: 21,53 m² | Étkező: 14,76 m² | Konyha: 9,75 m²
➡ 3 különálló hálószoba: egyenként 10,55 m²
➡ Fürdő: 6,62 m² | Előtér: 4,29 m² | WC: 1,71 m²
➡ Kültér: 24,36 m²-es hatalmas UV szűrős polikarbonáttal fedett terasz, 6 m² szigetelt kamra és 4,5 m² szerszámos.

A 450 nm-es telek minden szeglete gondosan tervezett és teljesen kiépített. A kertben magaságyások és üvegház, található.
A 2350 liter vízgyűjtőkapacitás is (az 1000 literes tartály szivattyúval ellátott) A tartályokban felgyülemlett plusz vízmennyiség elvezetése szikkasztó blokkokkal megoldott. A gépkocsik számára egy 48 m²-es murvázott beálló biztosított két kocsi részére.

Hőszigetelés:

-B30-‎Porotherm téglából+10cm-es homlokzati szigetelés,
-10 cm lépésálló lábazati- és 30 cm-es ásványgyapot födémszigetelés,
-Prémium nyílászárók 3 rétegű üvegezéssel ellátott, 6 kamrás profilok a kiváló hang - és hővédelemért,
-Gépészet: Ariston kondenzációs kazán (közös tereken padlófűtés, hálószobákban radiátorok, Wifi-s hővisszanyerős szellőztető rendszer és A++ Fisher hűtő-fűtő klíma,
-A kamrában 3 fázisú elektromos kiállás került kialakításra, lehetőség biztosít napelemes rendszer inverterének fogadására.

A modern otthoni infrastruktúrát erősíti, hogy minden szobában és a nappaliban is Ethernet- és koaxiális csatlakozások állnak rendelkezésre. A biztonságról és a kényelemről Hikvision kamerás kaputelefon,elektromos kapu távnyitással, rádióvezérlésű gépkocsi-kapunyitó rendszerrel, további információért valamint rugalmas megtekintésért hívjon bizalommal a hét minden napján.

INGYENES hitel tanácsadás, CSOK ügyintézés!
BANKFÜGGETLEN hitelcentrumunk minden elérhető bank és hitelintézet ajánlatát versenyezteti az Ön kedvéért, ráadásul DÍJMENTESEN. ...TOVÁBBI, TÖBBEZRES INGATLAN KÍNÁLAT: www.gdn-ingatlan.hu - GDN azonosító: 393152

Töltsd fel ingatlanhirdetésed ingyenesen!

Ingyenes hirdetésfeladás
Havi több mint egymillió ingatlankereső
Egyszerű és gyors hirdetésfeladás
Hirdetésfeladás
eladó
Lőrinczy LászlóIngatlanreferens
+36 30...
iroda logo
GDN IngatlanhálózatIroda további hirdetései

Töltsd fel ingatlanhirdetésed ingyenesen!

Ingyenes hirdetésfeladás
Havi több mint egymillió ingatlankereső
Egyszerű és gyors hirdetésfeladás
Hirdetésfeladás
Bank360Bank360
Személyi kölcsön
Lakáshitel
Bankszámla
Utasbiztosítás
1 000 000 Ft50 000 000 Ft
6 hónap50 hónap