Ingatlan360 logo
  • Magánszemélyeknek
  • Közvetítőknek
  • Hirdetésfeladás
  • Árak és hirdetési lehetőségek
  • Mennyit ér az ingatlanom?
  • Ingatlan statisztikák

Eladó sorház Kecskemét

Kecskemét képe
5
Kecskemét 2. képe
Kecskemét 3. képe5
83,9 M Ft
555 629 Ft / m²
151m2
Alapterület
528m2
Telekterület
4
Szoba
Fix 3%-os Otthon Start lakáshitel
Szobák száma
4
Építés éve
2025
Ingatlan állapota
Újszerű
Emelet
Földszint
Parkolás
nincs megadva
Légkondicionáló
Nincs
Közös költség
nincs megadva
Fűtés
Cirkófűtés
Fal építési anyaga
Tégla
Lift
Nincs
Az ingatlanról:
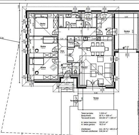
Kecskemét Hetényegyházán összközműves sarki telken eladó egy 2025 év végéig megvalósuló kivitelezés Az ingatlan nettó 103 m2 mely nappali 3 szobából áll ezen felül tartozik hozzá egy 16 m2 es garázs és egy 16 m2 es terasz így bruttó 151 m2 AZ ÁR TARTALMAZZA A TELEKÁRAT IS Műszaki tartalom: Porotherm N F 30 tégla Válaszfalak 10 cm es porotherm tégla Sávalap 90 cm mélységben Födém szeglemezes Héjazat antracit betoncserép Bádog horganyzott acéllemez Szigetelés: 15 cm EPS 10 cm XPS lábazati 12 cm aljazat 20 cm cellulóz Gipszkarton álmennyezet Fűtés 24 kW kombi kazán Klíma AUX 2 5 KW inverteres hűtő fűtő nappaliban és a 3 db hálószobában Villanyszerelés Schneider Asfora kapcsolók 50 db kiállást tartalmaz az ár Nyílászárók 3 rétegű üveggel 5 légkamrás argon gázzal töltött fehér színben beépített rejtett redőnytokok Bejárati ajtó nettó 200 000 Ft ig Hidegburkolat nettó 5 000 Ft nm áron Melegburkolat nettó 4 000 Ft nm áron Szaniterek nettó 400 000 Ft ig Beltéri ajtók nettó 60 000 Ft db kilincsel és zárszerkezettel Garázs aljzatbetonnal manuálisan működő garázskapuval Utcafronti behajtó kb 18 nm térkővel burkolva nettó 400 000 Ft ig az ár tartalmazzaTulajdonságok: Nappali amerikai konyha Háztartási helyiség 3 hálószoba fürdőszoba és wc külön helyiségben KamraAz ár kulcsrakész átadással értendő konyhabútor és lámpatestek nélkül a TELEK ÁRÁT TARTALMAZZA Szolgáltatásink:– Házépítés megbízható generálkivitelezővel– Értékbecslés– Energetikai tanúsítvány készítés– Ingyenes ingatlan értékmeghatározás– Megbízható ügyvédi háttér biztosítása– Ingyenes CSOK babaváró és hitelügyintézés Kérem tekintse meg a többi hirdetésemet is Ha eladó ingatlana van kérem keressen bizalommal Referencia szám: HZ058307

Töltsd fel ingatlanhirdetésed ingyenesen!

Ingyenes hirdetésfeladás
Havi több mint egymillió ingatlankereső
Egyszerű és gyors hirdetésfeladás
Hirdetésfeladás
eladó
Fekete ZsoltIngatlanreferens
+36 20...
iroda logo
Kecskemét, Jókai utca 5.Iroda további hirdetései

Töltsd fel ingatlanhirdetésed ingyenesen!

Ingyenes hirdetésfeladás
Havi több mint egymillió ingatlankereső
Egyszerű és gyors hirdetésfeladás
Hirdetésfeladás
Bank360Bank360
Személyi kölcsön
Lakáshitel
Bankszámla
Utasbiztosítás
1 000 000 Ft50 000 000 Ft
6 hónap50 hónap