Ingatlan360 logo
  • Magánszemélyeknek
  • Közvetítőknek
  • Hirdetésfeladás
  • Árak és hirdetési lehetőségek
  • Mennyit ér az ingatlanom?
  • Ingatlan statisztikák

Eladó családi ház Kecskemét

Kecskemét képe
22
Kecskemét 2. képe
Kecskemét 3. képe22
140 M Ft
699 950 Ft / m²
200m2
Alapterület
8642m2
Telekterület
5
Szoba
Fix 3%-os Otthon Start lakáshitel
Szobák száma
5
Építés éve
2008
Ingatlan állapota
Jó állapotú
Emelet
Földszint
Parkolás
nincs megadva
Légkondicionáló
Nincs
Közös költség
nincs megadva
Fűtés
Cirkófűtés
Fal építési anyaga
Tégla
Lift
Nincs
Az ingatlanról:
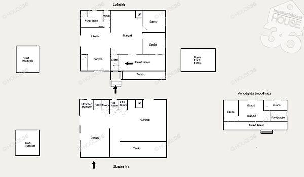
Kecskeméten eladó egy könnyen megközelíthető aszfaltozott zsákutcában lévő sokféle lehetőséget kínáló CSALÁDI HÁZ VENDÉGHÁZZAL saját erdővel sok kényelmi kiegészítővel és gyönyörűen parkosított nagy területtel Jellemzői: telek mérete: 8 642 m2 3 Hrsz on főépület: 3 000 m2 parkosított automata öntöző rendszerrel fűthető fedett medencével kerti szaletli kemencével elektromos kapuval ellátott területen lakótér: 80 m2 nappali 2 szoba konyha nagy étkezővel tágas fürdőszoba kamra fedett terasz: 30 m2 szuterén: nagy fűtött garázs zuhanyzó mosdó infrakabin gépészet medence ill lakóház óriási tároló helyiség jelenleg gardrób szoba lakrész kialakítható a szuterénből a lakórészbe lift segítségével is feljuthatunk vendégház mobilház 1 164 m2 gondozott zöld terület kb : 30 m2 konyha étkezővel 2 szoba fürdőszoba fedett terasszal 2 db 12 m2 es zárható tároló fa ill fém saját erdő: 4 478 m2 12 m2 es lemez házikóval Ez a különleges ingatlan egy helyen kínál családi otthont parkosított kertet vendégszállást wellness élményt SAJÁT ERDŐVEL A TERMÉSZET ÖLÉN Figyelem az adatlap megbízónktól kapott adatok alapján készült pontosságáért felelősséget nem tudunk vállalni Az iroda legfrissebb aktuális kínálatát a HOUSE36 saját weboldalán találja

Töltsd fel ingatlanhirdetésed ingyenesen!

Ingyenes hirdetésfeladás
Havi több mint egymillió ingatlankereső
Egyszerű és gyors hirdetésfeladás
Hirdetésfeladás
eladó
Mihócza ZsoltIngatlanreferens
+36 30...
iroda logo
HOUSE36 IngatlanhálózatIroda további hirdetései

Töltsd fel ingatlanhirdetésed ingyenesen!

Ingyenes hirdetésfeladás
Havi több mint egymillió ingatlankereső
Egyszerű és gyors hirdetésfeladás
Hirdetésfeladás
Bank360Bank360
Személyi kölcsön
Lakáshitel
Bankszámla
Utasbiztosítás
1 000 000 Ft50 000 000 Ft
6 hónap50 hónap