Ingatlan360 logo
  • Magánszemélyeknek
  • Közvetítőknek
  • Hirdetésfeladás
  • Árak és hirdetési lehetőségek
  • Mennyit ér az ingatlanom?
  • Ingatlan statisztikák

Eladó ikerház Keszthely

Keszthely képe
4
Keszthely 2. képe
Keszthely 3. képe4
142 M Ft
1 163 934 Ft / m²
122m2
Alapterület
400m2
Telekterület
4
Szoba
Fix 3%-os Otthon Start lakáshitel
Szobák száma
4
Építés éve
2026
Ingatlan állapota
Új
Emelet
nincs megadva
Parkolás
1 garázs
Légkondicionáló
Nincs
Közös költség
nincs megadva
Fűtés
nincs megadva
Fal építési anyaga
nincs megadva
Lift
Nincs
Az ingatlanról:
Keszthely és Cserszegtomaj határában, egy új építésű projekt keretein belül, a Panoráma Lakóparkban, összesen 6 lakóegység épül, 3 különálló ikerház formájában.

A hirdetésben szereplő ikerházfél alapterülete 122 nm, garázzsal és terasszal együtt.
Minden épületrészhez 400 nm saját, kerített kert tartozik.
A lakrészek között kaptak helyet a garázsok, így kellően intim minden élettér.

Az ingatlanról bővebben:

81,45 nm hasznos lakótér, plusz 21 nm terasz, és 20,16 nm garázs
30-as Porotherm N+F tégla falazat
Tető héjazata betoncserép
Az épületek a mai legmodernebb technológiával, korszerű anyagok felhasználásával épülnek
Fűtésről hőszivattyús rendszer gondoskodik, padlófűtésre csatlakoztatva
A hűtést szintén a hőszivattyú szolgáltatja, fancoil-ok segítségével

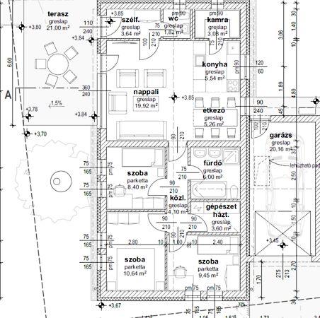
Helyiségek:

Előtér: 3.64 m2
WC: 1.82 m2
Kamra: 3.08 m2
Konyha-étkező: 10.8 m2
Nappali: 19.92 m2
Szoba: 8.4 m2
Szoba: 10.64 m2
Szoba: 9.45 m2
Háztartási helyiség: 3.6 m2
Fürdő: 6 m2
Közlekedő: 4.1 m2
Összesen: 81.45 m2

+ Garázs: 20,16 m2
+ Terasz: 21 m2

A lakások kulcsrakész állapotban kerülnek átadásra.
A hálószobák parketta, a többi helyiség gres lap padlóburkolatot kapnak.
A belső nyílászárók, és burkolatok színei választható.
A vételár nem tartalmazza a konyhabútor beépítését.
Várható átadás 2026 ősz.
Összesen 6 lakóegység épül hasonló paraméterekkel.
Komoly érdeklődés esetén a teljes tervdokumentáció, és műszaki leírás biztosított.

A kivitelező cég nagy múlttal rendelkezik az építőipar területén, megbízható, kiváló minőségben épít.
Számos referenciája megtekinthető a környéken.

További információért, és személyes megtekintéssel kapcsolatban keressen bizalommal a megadott elérhetőségeken.
Előre egyeztetett időpontban szívesen megmutatom a teljes projektet!

Fekete Bence
BJ Ingatlan

Töltsd fel ingatlanhirdetésed ingyenesen!

Ingyenes hirdetésfeladás
Havi több mint egymillió ingatlankereső
Egyszerű és gyors hirdetésfeladás
Hirdetésfeladás
eladó
Fekete BenceIngatlanreferens
+36 30...

Töltsd fel ingatlanhirdetésed ingyenesen!

Ingyenes hirdetésfeladás
Havi több mint egymillió ingatlankereső
Egyszerű és gyors hirdetésfeladás
Hirdetésfeladás
Bank360Bank360
Személyi kölcsön
Lakáshitel
Bankszámla
Utasbiztosítás
1 000 000 Ft50 000 000 Ft
6 hónap50 hónap