Ingatlan360 logo
  • Magánszemélyeknek
  • Közvetítőknek
  • Hirdetésfeladás
  • Árak és hirdetési lehetőségek
  • Mennyit ér az ingatlanom?
  • Ingatlan statisztikák

Eladó családi ház Kiskunfélegyháza

Kiskunfélegyháza képe
10
Kiskunfélegyháza 2. képe
Kiskunfélegyháza 3. képe10
55 M Ft
763 750 Ft / m²
72m2
Alapterület
772m2
Telekterület
2
Szoba
Fix 3%-os Otthon Start lakáshitel
Szobák száma
2
Építés éve
nincs megadva
Ingatlan állapota
Jó állapotú
Emelet
Földszint
Parkolás
nincs megadva
Légkondicionáló
Nincs
Közös költség
nincs megadva
Fűtés
Cirkófűtés
Fal építési anyaga
Tégla
Lift
Nincs
Az ingatlanról:
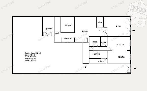
Álmodja meg saját városi kerthelyiségét ahol a gőzölgő kávé a kézműves pékség süteményei és a kenyér illata érezhető a nyugodtan elfogyasztott reggeli mellett Eladóvá vált Kiskunfélegyházán egy nagyszerű adottságú és nagyon jól megközelíthető épületegyüttes ahol megtalálható egy lakás garázs pékség a hozzátartozó helységekkel és üzlettér is Jó választás lehet reggelizőnek lakás étteremnek különleges kézműves pékségnek amelynek csak a stílusát kell kitalálni Jellemzői: Telek mérete: 772 m2 Lakás: 72 m2 2 nagy szoba folyosó fürdőszoba dolgozó szoba konyha kamra Üzlethelyiség: 23 5 m2 Pékség: 50 m2 2 raktár előkészítő sütőkemencés helység Garázs: 20 m2 Figyelem az adatlap megbízónktól kapott adatok alapján készült pontosságáért felelősséget nem tudunk vállalni Szolgáltatásaink Kereső ügyfeleink számára INGYENESEK Amennyiben eladó kiadó ingatlana van vagy finanszírozási megoldást keres hívjon megtaláljuk a legjobb lehetőséget Önnek A HOUSE36 kínálatában található összes ingatlannal kapcsolatban tudok felvilágosítást nyújtani Hívjon bizalommal Az iroda legfrissebb aktuális kínálatát a HOUSE36 saját weboldalán találja

Töltsd fel ingatlanhirdetésed ingyenesen!

Ingyenes hirdetésfeladás
Havi több mint egymillió ingatlankereső
Egyszerű és gyors hirdetésfeladás
Hirdetésfeladás
eladó
Fricskáné Oltai KatalinIngatlanreferens
+36 30...
iroda logo
HOUSE36 IngatlanhálózatIroda további hirdetései

Töltsd fel ingatlanhirdetésed ingyenesen!

Ingyenes hirdetésfeladás
Havi több mint egymillió ingatlankereső
Egyszerű és gyors hirdetésfeladás
Hirdetésfeladás
Bank360Bank360
Személyi kölcsön
Lakáshitel
Bankszámla
Utasbiztosítás
1 000 000 Ft50 000 000 Ft
6 hónap50 hónap