Ingatlan360 logo
  • Magánszemélyeknek
  • Közvetítőknek
  • Hirdetésfeladás
  • Árak és hirdetési lehetőségek
  • Mennyit ér az ingatlanom?
  • Ingatlan statisztikák

Eladó családi ház Kiskunhalas

Kiskunhalas képe
39
Kiskunhalas 2. képe
Kiskunhalas 3. képe39
94 M Ft
391 667 Ft / m²
240m2
Alapterület
369m2
Telekterület
5
Szoba
Fix 3%-os Otthon Start lakáshitel
Szobák száma
5
Építés éve
1998
Ingatlan állapota
Új
Emelet
nincs megadva
Parkolás
nincs megadva
Légkondicionáló
Nincs
Közös költség
nincs megadva
Fűtés
Cirkófűtés
Fal építési anyaga
nincs megadva
Lift
Nincs
Az ingatlanról:
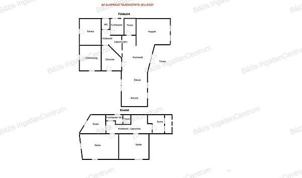
Bács-Kiskun megye Kiskunhalas belvárosban 369 m2 telekterületen, 240 m2 lakóterületű, igényes családi ház eladó. A tégla falazatú épület kiváló elosztású: a földszinten helyezkedik el a nappali, konyha-étkező, kamra és előszoba, az emeleten négy hálószoba, közlekedő és fürdőszoba-WC található. A fürdőszobában kád és tusoló is kialakításra került. Fűtését gázcirkó kazán biztosítja. Az emeleti szobák laminált padló burkolattal, a többi helyiség járólappal rendelkezik. A tetőtéri szobák 15 cm-es szigetelést kaptak. A családi ház egyedi nyílászárói fából készültek. Az ingatlanhoz tartozik egy 20 m2-es garázs, valamint mellette kialakításra került egy 20 m2-es üzlethelység fürdőszobával és WC-vel. Az igényesen parkosított udvarban egy 25 m2-es terasz található.Vevő ügyfeleinket díjmentes hitel tanácsadással és teljes körű ügyintézéssel segítjük az ingatlan megvásárlásában. Bővebb információért kérem keressen telefonon!

Egyéb jellemzők:

Villanyáram: Bevezetve (230 Volt).
Vízellátás: Van, saját vízórával.
Csatornázás: Közműhálózatba bekötve.
Gázellátás: Vezetékes gáz.
Kilátás: Udvari.

Töltsd fel ingatlanhirdetésed ingyenesen!

Ingyenes hirdetésfeladás
Havi több mint egymillió ingatlankereső
Egyszerű és gyors hirdetésfeladás
Hirdetésfeladás
eladó
Szalai AdrienneIngatlanreferens
+36 70...
iroda logo
Bázis IngatlanCentrumIroda további hirdetései

Töltsd fel ingatlanhirdetésed ingyenesen!

Ingyenes hirdetésfeladás
Havi több mint egymillió ingatlankereső
Egyszerű és gyors hirdetésfeladás
Hirdetésfeladás
Bank360Bank360
Személyi kölcsön
Lakáshitel
Bankszámla
Utasbiztosítás
1 000 000 Ft50 000 000 Ft
6 hónap50 hónap