Ingatlan360 logo
  • Magánszemélyeknek
  • Közvetítőknek
  • Hirdetésfeladás
  • Árak és hirdetési lehetőségek
  • Mennyit ér az ingatlanom?
  • Ingatlan statisztikák

Eladó családi ház Koroncó

Koroncó képe
4
Koroncó 2. képe
Koroncó 3. képe4
78 M Ft
787 879 Ft / m²
99m2
Alapterület
1060m2
Telekterület
4
Szoba
Fix 3%-os Otthon Start lakáshitel
Szobák száma
4
Építés éve
2026
Ingatlan állapota
Új
Emelet
nincs megadva
Parkolás
nincs megadva
Légkondicionáló
Nincs
Közös költség
nincs megadva
Fűtés
Padlófűtés
Fal építési anyaga
nincs megadva
Lift
Nincs
Az ingatlanról:
Koroncón lehet az új otthonotok, egy 1060 nm-es telken, nappali +3 szobás családi házat építünk számotokra.

Fűtéskész átadás a szerződés aláírásától számítva 9 hónap múlva.

Ne késlekedjetek, hívjatok, foglaljátok le ezt a remek ajánlatot!

3% os hitel az egész ingatlan értékre igénybe vehető!

 

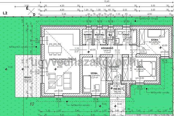
L2 (hátsó ház) 91,29 m2 lakótér + 15,42 terasz, bruttó 106,752 nm, lásd a képek között.

JANUÁRI kedvezményes ár: 2026.01.31-ig 3.000.000 Ft kedvezménnyel + ajándék 2 db murvázott beállóval: bruttó 67.999.000 Ft helyett bruttó 64.999.000 Ft + TELEK 13 M Ft.

Egy 1805 nm-es telken 2 db ÖNÁLLÓ ház épül fel, használati megosztással.

A bejáró mindössze a közös rész, ami 125 nm. lásd a képek között!

 

Műszaki szemmel, fontos infók, a fűtéskész állapot műszaki leírása:

 

Épületgépészet:
A fűtés rendszer padló fűtési rendszerrel kerül kiépítésre
Klíma előkészítés
Földmunka:
Tereprendezés(szemét elszállítása az építkezés után), humusz réteg letolása, kitűzés, gépi alapárok kiemelés 45 cm-es szélességben 90 cm mélységben, kézi után igazítással.
Alapozás:
Teherhordó falak alatt 85 cm mély 45 cm széles beton sávalap C12-32kk mixerbetonból.
Lábazati fal:
Két sor LEIER zsalukő.
Feltöltés:
10cm Kavicsfeltöltés döngölőgéppel tömörítve.

Gépészeti alapszerelés:
Csatorna alapszerelés 110 és 50 mm-es PVC csövekkel, felállásokkal.
Vízbevezetés KPE csővel szerelve, a kazán alatt leendő vízosztóhoz felállva.
Szerelőbeton:
12 cm vastag 15*15*5.2 hálóval vasalt szerelőbeton C12-32kk mixerbetonból a statikai tervek szerint.

Falazatok:
A fő és válaszfalak alatt bitumenes vastaglemez szigetelés.
Külső falak: 30 N+F téglából
A belső válaszfalak 10 N+F téglából.

Födém teherhordó szerk.:
Térelhatároló szerkezet( felső burkolás nélkül), alulról favázon 1rtg RB gipszkartonnal burkolva, párazáró fóliával. Padlásfeljáró helyének kialakítása létra nélkül.
Koszorú:
Zsaluzva hőszigeteléssel. Beton, C16-16kk mixerbeton vibrátorral tömörítve.   
Vasalás, 10-es fővasalással, 40 cm-enként, 6-os kengyelekkel. Talpszelemencsavarok elhelyezve.
Födém hőszigetelés:
30 cm vastag szálas hőszigetelés.
Kémény, Szellőzés:
Saunier Duval Semiatek Condens kazánhoz, gyári szerelt dupla falú kémény.
Tetőszerkezet:
Fa födém

Hagyományos tetőszerkezet 15*15 -ös talpszelemennel, 10*15 -ös szarufákkal, szükség szerint 5*15-ös fogópárral és 7,5*15-ös székszelemennel, 3*5 -ös Bramac ellenléc és tetőléccel, tetőfóliával.
Bádogozás:
Félkör keresztmetszetű színezett ereszcsatorna. Vápa horganyzott lemez.
Tetőfedés:
Bramac Natura, Mediterrán standard barna vagy szürke cserép.
Belső vakolás:
Gépi alap- és simítóvakolattal, pozitív sarkokon élvédő elhelyezéssel. Különböző anyagok találkozásánál rabic háló bedolgozással.
Külső homlokzat képzés:
Oldalfal:15 cm-es dryvit rendszer  hálózva színvakolattal(1-es színkategória)
Lábazat: 7 cm-es expert hőszigetelés színes lábazati vakolattal .
Párkány:
Dobozolt  kialakítás.
Aljzat:
1 réteg bitumenes vastaglemez talajnedvesség elleni szigetelés, 10 cm Austrotherm AT-N100 lépésálló hőszigetelés, 1 réteg technológiai szigetelés, 6 cm aljzatbeton.

Külső nyílászárók:
Fehér, műanyag rendszerű hőszigetelt üvegezésű ablakok (k=0,6 az üvegre), a téglafalba építve purhabbal, biztonsági bejárati ajtóval.

Villanyszerelés:

Szobák, nappali-konyha-étkező: 1db világítótest, 5db tetszőlegesen választható kapcsoló vagy dugalj. Közlekedő, WC, fürdő, kamra, háztartási helyiség 1db világítótest 3 db dugalj vagy kapcsoló. Kültéren:1db világítótest, és 2db kapcsoló vagy dugalj kialakítása. A darabszám helyiségenként értendő.

Terasz / közlekedők / gépkocsibeálló
Murvázott terasz a rajzott jelzett 15 m2-en.

Gépkocsibeálló + hozzá vezető közös út és behajtó murvázva
Térköves beálló és terasz felár ellenében kérhető

Megjegyzés: Ezen műszaki tartalom szerves részét képezi az árajánlatnak. Ettől való bármilyen eltérés lehetséges, de árváltozást eredményezhet. Változtatási szándékát kérjük, szerződéskötés előtt feltétlenül jelezze! 

Fontos: A külső közművek (víz, villany, szennyvíz, csapadékvíz elvezetés) biztosítása az épületen kívül, az épületen belüli csatlakozási pontig a megrendelő feladata!

Ennek költsége kb. bruttó 2.500.000 Ft, ami külön fizetendő!

Várom hívásod!

 

Egyéb jellemzők:

Villanyáram: Vezeték a telek előtt.
Vízellátás: Vízvezeték a telek előtt.
Csatornázás: Csatorna az utcában.
Gázellátás: Vezetékes gáz.
Kilátás: Kertre néző.

Töltsd fel ingatlanhirdetésed ingyenesen!

Ingyenes hirdetésfeladás
Havi több mint egymillió ingatlankereső
Egyszerű és gyors hirdetésfeladás
Hirdetésfeladás
eladó
Hartmann-né Ildikó VikiIngatlanreferens
+36 20...

Töltsd fel ingatlanhirdetésed ingyenesen!

Ingyenes hirdetésfeladás
Havi több mint egymillió ingatlankereső
Egyszerű és gyors hirdetésfeladás
Hirdetésfeladás
Bank360Bank360
Személyi kölcsön
Lakáshitel
Bankszámla
Utasbiztosítás
1 000 000 Ft50 000 000 Ft
6 hónap50 hónap