Ingatlan360 logo
  • Magánszemélyeknek
  • Közvetítőknek
  • Hirdetésfeladás
  • Árak és hirdetési lehetőségek
  • Mennyit ér az ingatlanom?
  • Ingatlan statisztikák

Eladó családi ház Kőszeg

Kőszeg képe
9
Kőszeg 2. képe
Kőszeg 3. képe9
106,6 M Ft
852 800 Ft / m²
125m2
Alapterület
571m2
Telekterület
4
Szoba
Fix 3%-os Otthon Start lakáshitel
Szobák száma
4
Építés éve
2025
Ingatlan állapota
nincs megadva
Emelet
nincs megadva
Parkolás
nincs megadva
Légkondicionáló
Nincs
Közös költség
nincs megadva
Fűtés
Cirkófűtés
Fal építési anyaga
nincs megadva
Lift
Nincs
Az ingatlanról:
Kőszegen új, tégla építésű családi házak eladók az Alsó körúton. Az ingatlanok minőségi alapanyagok felhasználásával, a jelenlegi előírások betartásával épülnek,
BB energetikai besorolásnak megfelelnek. A lakóingatlan tégla építésű, szigetelt, lapostetős kivitellel, műanyag nyílászárókkal készült.
1 ikerház + 1 önálló családi ház épül egy telekre, önálló kerthasználattal.

Hasznos alapterületek: 571 nm-es saját használatú kertkapcsolat
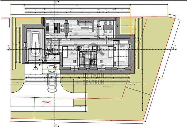
A nettó 98,72 nm -es ingatlan elosztása - földszintes: 3 hálószoba + nappali-konyha-étkező + fürdő-wc, háztartási helyiség, wc-mosdó.
A hálószobák átlagosan 10 nm-esek, a nappali - étkező 28 nm-es a meglévő tervek szerint.
Részben fedett terasz , előtér, 19,8 nm-es garázs, telek a hirdetési árban szerepel !

A szobák laminált lappal burkoltak, a többi helyiség kerámia lappal, illetve impregnált laminált padlóburkolattal szerepel a tervezetben.
Bővebb információért kérem keressen a megadott elérhetőségeken!
Várható átadás: 2026 év vége!
Projekt bemutatása

Kőszegen új, tégla építésű családi házak eladók az Alsó körúton. Az ingatlanok minőségi alapanyagok felhasználásával, jelenlegi előírások betartásával épülnek.
BB energetikai besorolásnak megfelelnek . A lakóingatlan okos tégla építésű, 10 cmes grafitos nikecellel szigetelt, lapostető kivitelű, 3 légkamrás műanyag nyílászáróval kerülnek kialakításra.
2 lakóház épül egy telekre: egy ikerház stílus kivitelezésével ,egy önálló családi ház.
Hasznos alapterületek:
Az ingatlan elosztása földszint: terasz, 3 hálószoba+nappali-konyha-étkező+kamra,zuhanyzó-wc, közlekedő.
A szobák laminált lappal borítottan a többi helyiség kerámia lappal illetve impregnált laminált padló burkolattal tervezettek.
A hálószobák 10-14 nm-esek átlagosan, nappali mérete kb. 25 nm.
Kulcsátadás várhatóan 2024, augusztus, Az ingatlanok 20% önrésszel foglalhatók.

Jelenlegi készültséget a hirdetéshez kapcsolt fotók mutatják. A kivitelező leinformálható, több igényes referencia munkával rendelkezik.

Hitelre van szüksége? Az Otthon Centrum az ország egyik legnagyobb és legmegbízhatóbb hitelközvetítőjeként, teljes körű és díjmentes hitel ügyintézéssel, biztosításkötéssel áll rendelkezésére! Kérje személyre szabott ajánlatunkat Kollégáinktól!
Válassza ki az Önnek legmegfelelőbbet!
Villanyáram: van.
Vízellátás: van.
Csatornázás: van.
Gázellátás: van.

Töltsd fel ingatlanhirdetésed ingyenesen!

Ingyenes hirdetésfeladás
Havi több mint egymillió ingatlankereső
Egyszerű és gyors hirdetésfeladás
Hirdetésfeladás
eladó
Tóth ÉvaIngatlanreferens
+36 70...

Töltsd fel ingatlanhirdetésed ingyenesen!

Ingyenes hirdetésfeladás
Havi több mint egymillió ingatlankereső
Egyszerű és gyors hirdetésfeladás
Hirdetésfeladás
Bank360Bank360
Személyi kölcsön
Lakáshitel
Bankszámla
Utasbiztosítás
1 000 000 Ft50 000 000 Ft
6 hónap50 hónap