Ingatlan360 logo
  • Magánszemélyeknek
  • Közvetítőknek
  • Hirdetésfeladás
  • Árak és hirdetési lehetőségek
  • Mennyit ér az ingatlanom?
  • Ingatlan statisztikák

Eladó családi ház Kunadacs

Kunadacs képe
15
Kunadacs 2. képe
Kunadacs 3. képe15
29,9 M Ft
249 167 Ft / m²
120m2
Alapterület
1440m2
Telekterület
4
Szoba
Fix 3%-os Otthon Start lakáshitel
Szobák száma
4
Építés éve
1979
Ingatlan állapota
Átlagos
Emelet
Földszint
Parkolás
nincs megadva
Légkondicionáló
Nincs
Közös költség
nincs megadva
Fűtés
Cirkófűtés
Fal építési anyaga
Vegyes
Lift
Nincs
Az ingatlanról:
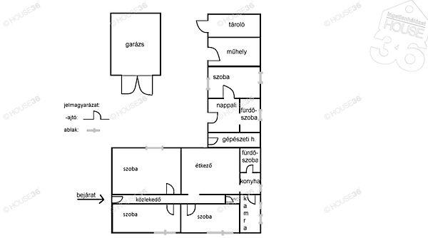
Kunadacson központi csendes utcában eladó tágas családi ház hatalmas telekkel Eladásra kínálunk egy családi házat amely kialakításának köszönhetően akár két generáció együttélésére is kiválóan alkalmas A ház jellemzői; 2007 ben tető teljes felújítás történt a gerendákkal együtt cserélve 2 konyha 2 fürdőszoba Melléképületek és dupla garázs 1440 m2 telek 4 szoba étkező Figyelem az adatlap megbízóinktól kapott adatok alapján készült pontosságáért felelősséget nem tudunk vállalni A HOUSE36 kínálatában található összes ingatlannal kapcsolatban tudok felvilágosítást nyújtani Az iroda legfrissebb aktuális kínálatát a HOUSE36 saját weboldalán találja

Töltsd fel ingatlanhirdetésed ingyenesen!

Ingyenes hirdetésfeladás
Havi több mint egymillió ingatlankereső
Egyszerű és gyors hirdetésfeladás
Hirdetésfeladás
eladó
Ács MagdolnaIngatlanreferens
+36 30...
iroda logo
HOUSE36 IngatlanhálózatIroda további hirdetései

Töltsd fel ingatlanhirdetésed ingyenesen!

Ingyenes hirdetésfeladás
Havi több mint egymillió ingatlankereső
Egyszerű és gyors hirdetésfeladás
Hirdetésfeladás
Bank360Bank360
Személyi kölcsön
Lakáshitel
Bankszámla
Utasbiztosítás
1 000 000 Ft50 000 000 Ft
6 hónap50 hónap