Ingatlan360 logo
  • Magánszemélyeknek
  • Közvetítőknek
  • Hirdetésfeladás
  • Árak és hirdetési lehetőségek
  • Mennyit ér az ingatlanom?
  • Ingatlan statisztikák

Eladó családi ház Lukácsháza

Lukácsháza képe
9
Lukácsháza 2. képe
Lukácsháza 3. képe9
35 M Ft
472 973 Ft / m²
74m2
Alapterület
521m2
Telekterület
3
Szoba
Fix 3%-os Otthon Start lakáshitel
Szobák száma
3
Építés éve
nincs megadva
Ingatlan állapota
Felújítandó
Emelet
nincs megadva
Parkolás
1 garázs
Légkondicionáló
Nincs
Közös költség
nincs megadva
Fűtés
Cirkófűtés
Fal építési anyaga
Tégla
Lift
nincs megadva
Az ingatlanról:
Lukácsházán a falu központjában felújítandó családi ház eladó

FIX 3%-os hitel Magyarország Kormányának támogatásával

Lukácsháza Kőszeg és Szombathely között található, nem messze az osztrák határtól. Itt ritkán kerül eladósorba ingatlan.

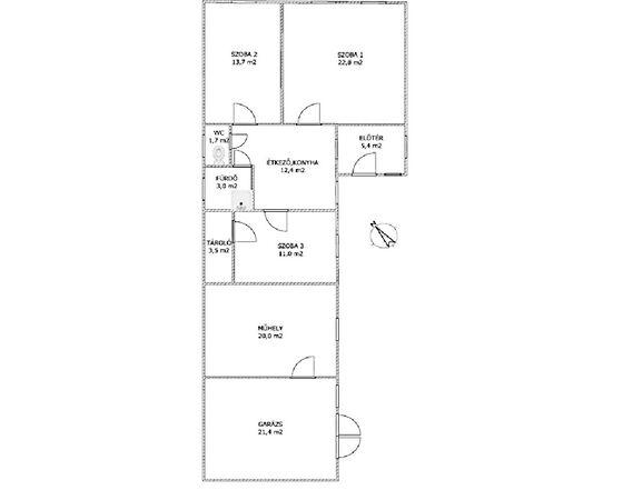
A házhoz tartozó önálló, rendezett telek 521m2, amelyen hátul garázs és műhely is található.
Az ingatlan kő alapzaton téglafalazatú, minden közművel rendelkezik-, a lakótér mért nettó alapterülete 74 m2 + 20 m2 műhely és 22 m2 garázs.
Helyiséglista (jelenleg):
3 szoba, konyha + étkező, fedett előtér, fürdőszoba, wc, tároló és garázs

A ház teljes felújításra, modernizálásra szorul.

Műszaki adatok:
Nyílászárók: műanyag és fa (hőszigetelt)
Központi fűtés (kondenzációs kazán); rézcsövek, radiátoros hőleadással
Ásott kút
Pince nincs, a födém stukatúros
Áram 16A + 16A éjszakai áram a bojlerhez
A ház minden közművel rendelkezik.

Az ingatlan a falu központi részén helyezkedik el, közel mindenhez; a településen iskola, óvoda, orvos, bolt, busz- és vonatközlekedés érhető el.

Felújítást követően szuper családi otthon lehet.

További információ és időpontegyeztetés:
Molnár Tamásné Dóra
Fundamenta Ingatlan

Töltsd fel ingatlanhirdetésed ingyenesen!

Ingyenes hirdetésfeladás
Havi több mint egymillió ingatlankereső
Egyszerű és gyors hirdetésfeladás
Hirdetésfeladás
eladó
Molnár Tamásné Ingatlanreferens
+36 30...
iroda logo
Fundamenta IngatlanIroda további hirdetései

Töltsd fel ingatlanhirdetésed ingyenesen!

Ingyenes hirdetésfeladás
Havi több mint egymillió ingatlankereső
Egyszerű és gyors hirdetésfeladás
Hirdetésfeladás
Bank360Bank360
Személyi kölcsön
Lakáshitel
Bankszámla
Utasbiztosítás
1 000 000 Ft50 000 000 Ft
6 hónap50 hónap