Ingatlan360 logo
  • Magánszemélyeknek
  • Közvetítőknek
  • Hirdetésfeladás
  • Árak és hirdetési lehetőségek
  • Mennyit ér az ingatlanom?
  • Ingatlan statisztikák

Eladó családi ház Mezőkomárom

Mezőkomárom képe
8
Mezőkomárom 2. képe
Mezőkomárom 3. képe8
9,9 M Ft
235 714 Ft / m²
42m2
Alapterület
1058m2
Telekterület
2
Szoba
Fix 3%-os Otthon Start lakáshitel
Szobák száma
2
Építés éve
1970
Ingatlan állapota
Felújítandó
Emelet
nincs megadva
Parkolás
Udvarban
Légkondicionáló
Nincs
Közös költség
nincs megadva
Fűtés
Konvektor
Fal építési anyaga
Vályog
Lift
Nincs
Az ingatlanról:
Siófoki Lido Home eladásra kínál egy felújítandó családi házat Mezőkomáromban!
Mezőkomárom egy csendes, nyugodt település, ami Siófoktól 27 km távolságra található.
Néhány perces sétával elérhető buszmegálló, óvoda, gyógyszertár, élelmiszerbolt.
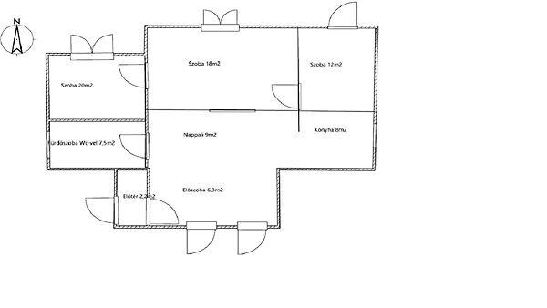
A 42 m2 -es családi ház egy 1058 m2 -es telken található.
Az ingatlanban két szoba, egy külön bejáratú konyha és kamra kapott helyet. Fürdőszoba nincs a házban, így ki kell alakítani.
A nyílászárók fából készültek, redőnnyel vannak ellátva.
A telken található több zárható tároló, továbbá szép növényzet és számos fa.
Parkolásra van lehetőség az udvaron belül.
Ideális lehet hétvégi háznak az elcsendesülni vágyóknak vagy családosok számára, akik felújítással vagy átalakítással otthonosabbá varázsolhatják!
Amennyiben a LIDO HOME által kínált eladó családi ház , vagy bármely a kínálatunkban található ingatlan felkeltette érdeklődését, hívjon bármikor a megadott telefonszámon.
Vásárolna, de nincs rá keret? Kollégám díjmentes, bank semleges hitelügyintézéssel áll rendelkezésére.
LIDO HOME-Ingatlanok egy életen át!

Töltsd fel ingatlanhirdetésed ingyenesen!

Ingyenes hirdetésfeladás
Havi több mint egymillió ingatlankereső
Egyszerű és gyors hirdetésfeladás
Hirdetésfeladás
eladó
Móricz ZsófiaIngatlanreferens
+36 30...

Töltsd fel ingatlanhirdetésed ingyenesen!

Ingyenes hirdetésfeladás
Havi több mint egymillió ingatlankereső
Egyszerű és gyors hirdetésfeladás
Hirdetésfeladás
Bank360Bank360
Személyi kölcsön
Lakáshitel
Bankszámla
Utasbiztosítás
1 000 000 Ft50 000 000 Ft
6 hónap50 hónap