Ingatlan360 logo
  • Magánszemélyeknek
  • Közvetítőknek
  • Hirdetésfeladás
  • Árak és hirdetési lehetőségek
  • Mennyit ér az ingatlanom?
  • Ingatlan statisztikák

Eladó családi ház Gödöllői, Mogyoród

Gödöllői, Mogyoród képe
20
Gödöllői, Mogyoród 2. képe
Gödöllői, Mogyoród 3. képe20
63,3 M Ft
575 000 Ft / m²
110m2
Alapterület
509m2
Telekterület
4
Szoba
Fix 3%-os Otthon Start lakáshitel
Szobák száma
4
Építés éve
nincs megadva
Ingatlan állapota
Átlagos
Emelet
nincs megadva
Parkolás
1 garázs
Légkondicionáló
Nincs
Közös költség
nincs megadva
Fűtés
Cirkófűtés
Fal építési anyaga
Tégla
Lift
Nincs
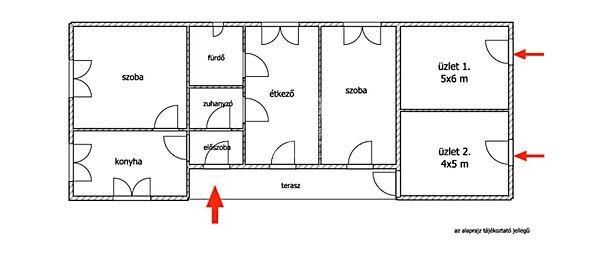
Az ingatlanról:
Eladásra kínálok Mogyoród központi részén, egy önálló csaladi házat.
A ház 1940es években mogyoródi kőből épült, így rendkívül stabil szerkezettel rendelkezik, majd téglából 1960-ban hozzá építettek. Tető cseréppel borított.
Az utcafronti részen jelenleg 2 külön bejaratú üzlethelyiség található, melyeknek közös mosdójuk van.
A ház udvar felöli bejarattal rendelkező, hátsó része gyakorlatilag 2 szoba, konyha, előszoba, fürdőszoba, plusz külön zuhanyzó, kamra es egy fedett terasz.
A lakóház utan az udvarban tároló es garazs is van.
Rendezett, 510 nm nagyságú telek!
Átalakítási tippek:
- ház alkalmas 5 szoba kialakítására is, avagy az étkezőt egybevonva az egyik szobával, és az üzleteket szobává alakítva, egy modern 3 hálószoba, plusz nappalis elosztast is ki lehet alakítani!
- Ezen túl még 2 kényelmes lakás is kialakitható, 2 külön bejárattal.
Egyszóval rengeteg lehetőséget, és elérhető aron nyujt ez a nagyszerű ház!
Hivjon bizalommal, tekintsük meg együtt! ...TOVÁBBI, TÖBBEZRES INGATLAN KÍNÁLAT: www.gdn-ingatlan.hu - GDN azonosító: 391468

Töltsd fel ingatlanhirdetésed ingyenesen!

Ingyenes hirdetésfeladás
Havi több mint egymillió ingatlankereső
Egyszerű és gyors hirdetésfeladás
Hirdetésfeladás
eladó
Nagy BarbaraIngatlanreferens
+36 70...
iroda logo
GDN IngatlanhálózatIroda további hirdetései

Töltsd fel ingatlanhirdetésed ingyenesen!

Ingyenes hirdetésfeladás
Havi több mint egymillió ingatlankereső
Egyszerű és gyors hirdetésfeladás
Hirdetésfeladás
Bank360Bank360
Személyi kölcsön
Lakáshitel
Bankszámla
Utasbiztosítás
1 000 000 Ft50 000 000 Ft
6 hónap50 hónap