Ingatlan360 logo
  • Magánszemélyeknek
  • Közvetítőknek
  • Hirdetésfeladás
  • Árak és hirdetési lehetőségek
  • Mennyit ér az ingatlanom?
  • Ingatlan statisztikák

Eladó családi ház Mosonmagyaróvár

Mosonmagyaróvár képe
9
Mosonmagyaróvár 2. képe
Mosonmagyaróvár 3. képe9
54 M Ft
750 000 Ft / m²
72m2
Alapterület
1000m2
Telekterület
2
Szoba
Fix 3%-os Otthon Start lakáshitel
Szobák száma
2
Építés éve
1964
Ingatlan állapota
Átlagos
Emelet
nincs megadva
Parkolás
nincs megadva
Légkondicionáló
Nincs
Közös költség
nincs megadva
Fűtés
nincs megadva
Fal építési anyaga
nincs megadva
Lift
Nincs
Az ingatlanról:
Ha olyan otthont keresel, amit saját ízlésedre formálhatsz, ahol a nagy telek miatt szabadon tervezhetsz kertet, teraszt, garázst vagy akár bővítést, akkor ez a ház remek lehetőség.
A 72 m²-es családi ház egy 1000 m²-es, gondozható, széles utcafrontú telken helyezkedik el, a város egyik csendes, jól lakható részén. A ház 1964-ben épült, stabil alapokkal és szép arányú helyiségekkel — a felújítás pedig teret ad annak, hogy pontosan olyan otthont alakíts ki, amilyenre vágysz.
Amit már nem kell kicserélned:
Műanyag, hőszigetelt nyílászárók
Kiépített gázkonvektoros fűtés
Több helyiségben cserépkályha is használható
10 m²-es fedett terasz, ami akár egész éves pihenőrésszé tehető

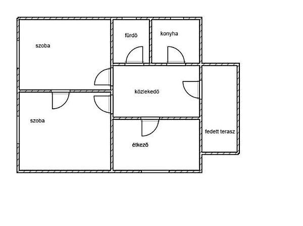
A jelenlegi elosztás (alaprajz alapján):
2 szoba
étkező
közlekedő
konyha
fürdő
fedett terasz

A helyiségek jól rendezhetők, akár egy könnyű átalakítással modern, amerikai konyhás nappali is kialakítható. A nagy telek pedig tovább növeli az értéket: építkezés, melléképület, garázs, kerti tó, veteményes, kutyafuttató — bármi elfér rajta.
Miért jó választás ez az ingatlan a leendő tulajdonosnak?

Felújításnál nincs kompromisszum: teljes mértékben a saját ízlésed szerint alakíthatod.
Nagy és sík telek: ritka ekkora, jól használható telekméret Mosonmagyaróváron.
Energiabarát lehetőségek: szigetelés, új fűtésrendszer, hőszivattyú – mind megvalósítható.
Csendes, nyugodt lakókörnyezet: mégis pár percre a bevásárlási lehetőségektől és a városközponttól.
Kiváló választás befektetésnek is: felújítva magas bérleti értékkel rendelkezik.

Kinek ajánlom?
akik szeretnének egy jó alapállapotú házat saját elképzelés szerint megújítani,
akik fontosnak tartják a nagy telek adta lehetőségeket,
vagy akik befektetési célra keresnek felújítható ingatlant.

Töltsd fel ingatlanhirdetésed ingyenesen!

Ingyenes hirdetésfeladás
Havi több mint egymillió ingatlankereső
Egyszerű és gyors hirdetésfeladás
Hirdetésfeladás
eladó
GIngatlanreferens
+36 30...

Töltsd fel ingatlanhirdetésed ingyenesen!

Ingyenes hirdetésfeladás
Havi több mint egymillió ingatlankereső
Egyszerű és gyors hirdetésfeladás
Hirdetésfeladás
Bank360Bank360
Személyi kölcsön
Lakáshitel
Bankszámla
Utasbiztosítás
1 000 000 Ft50 000 000 Ft
6 hónap50 hónap