Ingatlan360 logo
  • Magánszemélyeknek
  • Közvetítőknek
  • Hirdetésfeladás
  • Árak és hirdetési lehetőségek
  • Mennyit ér az ingatlanom?
  • Ingatlan statisztikák

Eladó ikerház Kossuth, Nagykovácsi

Kossuth, Nagykovácsi képe
8
Kossuth, Nagykovácsi 2. képe
Kossuth, Nagykovácsi 3. képe8
255 M Ft
1 500 000 Ft / m²
170m2
Alapterület
2051m2
Telekterület
6
Szoba
Szobák száma
6
Építés éve
nincs megadva
Ingatlan állapota
Új
Emelet
nincs megadva
Parkolás
1 garázs
Légkondicionáló
Nincs
Közös költség
nincs megadva
Fűtés
nincs megadva
Fal építési anyaga
Tégla
Lift
Nincs
Az ingatlanról:
A főváros központjától mindössze 15 km-re, Nagykovácsiban 170nm-es, 5+1 szobás, garázsos, duplakomfortos, energiatudatos ikerház eladó

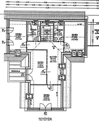
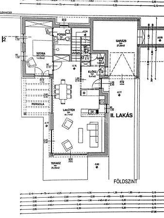
Az eladó ikerház 2024 III.-IV. negyedévében kerül átadásra. A B2 jelű lakás az utcafronttól a második (belső) ingatlan.

Elrendezése:
Földszinten Nappali-konyha-étkező (44,7 nm), szoba (14,8 nm), fürdőszoba (4,95), vendég WC, gardrób, előszoba + garázs (27,9 nm) + terasz (25 nm);
Emelet: 4 szoba (br. 18,9, 14,8,16,7 és 9,4 nm) 2 fürdőszoba (5,0 és 3,7 nm) + lépcsőház.

Fűtés és meleg víz: hőszivattyú padló és mennyezet felületi fűtéssel.
Külső nyílászárók pácoét fa szerkezetűek, ablakok háromrétegűek hőszigetelt üvegezéssel, külső zsaluziáva. Belső ajtók: pácolt fa szerkezetűek.

Hőszigetelés: padlóban 15 cm; tetőfödémben 30 cm; garázsban 10 cm.

Hangszigetelés padlóban, födémben 4 cm.

Pergola a D-i fronton.
Esővíztárolás: 5 m3.

A 2051 nm-es telken két ikerház kerül kialakításra, az egyes lakásokhoz ~ 400 nm-es saját kertrész tartozik.

Fiztési ütemezés a készenléti állapotnak megfelelően.

Amennyiben az ingatlanvásárlásához banki finanszírozást is igénybe kíván venni, úgy BANKFÜGGETLEN hitelügyintéző kollégáink szívesen nyújtanak felvilágosítást az aktuális hitelekkel, egyénre szabott kedvezményekkel, CSOK-kal kapcsolatban. ...TOVÁBBI, TÖBBEZRES INGATLAN KÍNÁLAT: www.gdn-ingatlan.hu - GDN azonosító: 371362

Töltsd fel ingatlanhirdetésed ingyenesen!

Ingyenes hirdetésfeladás
Havi több mint egymillió ingatlankereső
Egyszerű és gyors hirdetésfeladás
Hirdetésfeladás
eladó
Szalay ZsuzsannaIngatlanreferens
+36 30...
iroda logo
GDN IngatlanhálózatIroda további hirdetései

Töltsd fel ingatlanhirdetésed ingyenesen!

Ingyenes hirdetésfeladás
Havi több mint egymillió ingatlankereső
Egyszerű és gyors hirdetésfeladás
Hirdetésfeladás
Bank360Bank360
Személyi kölcsön
Lakáshitel
Bankszámla
Utasbiztosítás
1 000 000 Ft50 000 000 Ft
6 hónap50 hónap