Ingatlan360 logo
  • Magánszemélyeknek
  • Közvetítőknek
  • Hirdetésfeladás
  • Árak és hirdetési lehetőségek
  • Mennyit ér az ingatlanom?
  • Ingatlan statisztikák

Eladó ikerház Nyíregyháza

Nyíregyháza képe
2
Nyíregyháza 2. képe
Nyíregyháza 3. képe2
85 M Ft
801 887 Ft / m²
106m2
Alapterület
1120m2
Telekterület
5
Szoba
Fix 3%-os Otthon Start lakáshitel
Szobák száma
5
Építés éve
2026
Ingatlan állapota
Új
Emelet
nincs megadva
Parkolás
nincs megadva
Légkondicionáló
Nincs
Közös költség
nincs megadva
Fűtés
nincs megadva
Fal építési anyaga
nincs megadva
Lift
Nincs
Az ingatlanról:
Nyíregyháza Nyírszőlős városrészének nyugodt, csendes utcájában kínálunk megvételre egy tégla építésű ikerházat, amely jelenleg körülbelül 50%-os készültségi állapotban van. A várható átadás 2026 májusában történik.

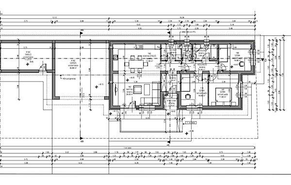
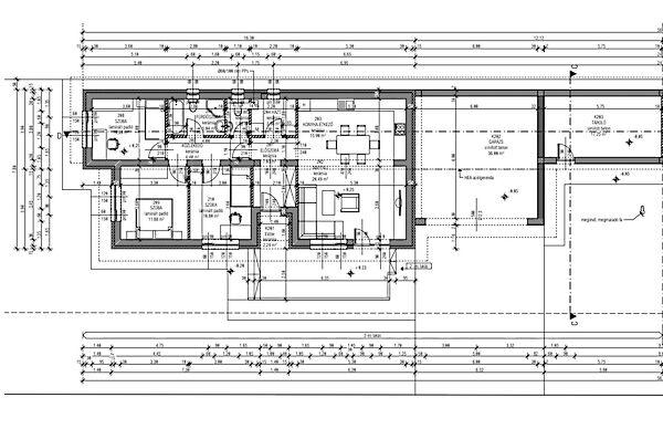
Az ingatlan egy 1120 m²-es telken helyezkedik el, a lakótér alapterülete 106 m². Elrendezése praktikus és családbarát: nappali + 3 külön nyíló szoba biztosítja a kényelmes mindennapokat.

Az ikerház a tárolónál kapcsolódik a szomszédos épülethez, így a lakótér zavartalan, jól szeparált. Napfényes tájolásának köszönhetően a helyiségek világosak, barátságosak.

Főbb jellemzők:

* Telek mérete: 1120 m²
* Lakótér: 106 m²
* 30 cm-es tégla szerkezetű ikerház + 15 cm nikecell szigetelés
* 3 szoba + nappali
* Saját garázs
* A két lakrész a tárolónál ér össze
* Kondenzációs gázkazán fűtés
* Csendes, kertvárosias környezet
* Műanyag nyílászárók

 

A klíma és egyéb extrák beszerelése megegyezés tárgyát képezi, így a leendő tulajdonos saját igényeihez igazíthatja az otthon felszereltségét.

Az ingatlan ideális választás családoknak, akik modern, nyugodt környezetben szeretnének új építésű otthonba költözni. A környék rendezett, a szomszédság barátságos.

További információért és megtekintésért keressen bizalommal.
 

Egyéb jellemzők:

Villanyáram: Bevezetve (230 Volt).
Vízellátás: Van, saját vízórával.
Csatornázás: Derítő.
Kilátás: Udvari.

Töltsd fel ingatlanhirdetésed ingyenesen!

Ingyenes hirdetésfeladás
Havi több mint egymillió ingatlankereső
Egyszerű és gyors hirdetésfeladás
Hirdetésfeladás
eladó
Gajdosné Borbély SzabinaIngatlanreferens
+36 70...
iroda logo
Értékes Otthon IngatlanirodaIroda további hirdetései

Töltsd fel ingatlanhirdetésed ingyenesen!

Ingyenes hirdetésfeladás
Havi több mint egymillió ingatlankereső
Egyszerű és gyors hirdetésfeladás
Hirdetésfeladás
Bank360Bank360
Személyi kölcsön
Lakáshitel
Bankszámla
Utasbiztosítás
1 000 000 Ft50 000 000 Ft
6 hónap50 hónap