Ingatlan360 logo
  • Magánszemélyeknek
  • Közvetítőknek
  • Hirdetésfeladás
  • Árak és hirdetési lehetőségek
  • Mennyit ér az ingatlanom?
  • Ingatlan statisztikák

Eladó családi ház Pécs

Pécs képe
16
Pécs 2. képe
Pécs 3. képe16
79 M Ft
564 286 Ft / m²
140m2
Alapterület
398m2
Telekterület
3
Szoba
Fix 3%-os Otthon Start lakáshitel
Szobák száma
3
Építés éve
1920
Ingatlan állapota
nincs megadva
Emelet
nincs megadva
Parkolás
nincs megadva
Légkondicionáló
Nincs
Közös költség
nincs megadva
Fűtés
Konvektor
Fal építési anyaga
nincs megadva
Lift
Nincs
Az ingatlanról:
Pécs Belváros szélén a Búza tér közelében eladó 2 hálószobás családi ház.
Az ingatlan a településközponti vegyes zónába tartozik. Környezetében főként családi házak találhatók.
A Kulturális Főváros Projekt fejlesztési területeinek közelségében van.
Az utca aszfalt burkolatú, gyalogosan és gépjárművel jól megközelíthető. A parkolás az utcában ingyenes.
Az ingatlan környezetében az alap kommunális ellátás biztosított. Iskola, óvoda és egyéb kereskedelmi egységek, üzletközpont 1 km távolságon belül helyezkednek el. A városközponttól való távolsága kb. 2 km. Elhelyezkedése miatt kiváló befektetés.
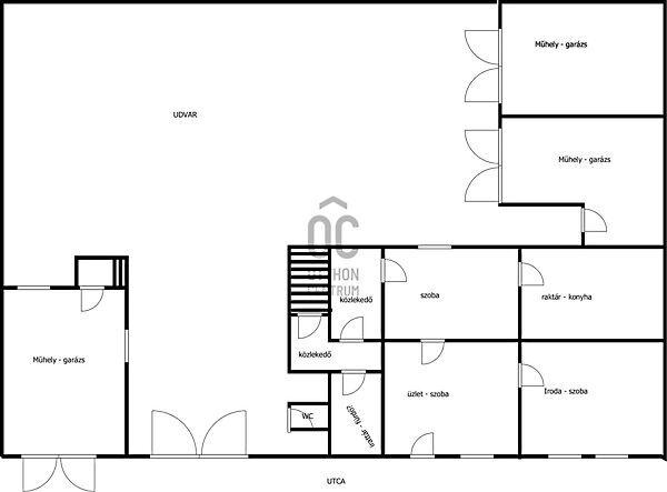
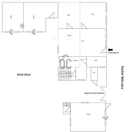
Megközelíthető az átrium üzletház felől. Az utcafronti épület (80nm), tartalmaz tágas nappalit amiből két nagy méretű szoba nyílik. Nagy méretű közlekedőt egy kisebb helységgel, valamint három garázst (melyek együttes alapterülete 76nm) és egy 180 négyzetméteres belső udvart mely legalább 3 autó tárolására alkalmas.
Az épület az utcafronti telekhatáron helyezkedik el, zárt sorú beépítési móddal. Az utcafronttal párhuzamos tetőgerincű nyeregtetővel fedett, az utcafronton földszintes, épület az 1960-as években épült, a korra jellemző anyagokkal és technológiával, tégla és kő falazattal. Az épület teljes felújítására került sor a 2000-es évek elején. Ekkor épült meg az utcafronti valamint a belső udvarban található további két műhely tégla falazattal. Az utcafronti épület hidegburkolattal, műanyag nyílászárókkal új cserép tetőszerkezettel lett ellátva.
A telek összközműves. Valamennyi épületben villany és gáz közművek lettek bevezetve. Az épületek fűtése gáz konvektorral megoldott. Mindhárom műhely gáz konvektorral fűtött, és billenő garázskapuval lett szerelve, valamint LEDes lámpák gondoskodik a gazdaságos világításról.
Víz és csatorna az épületben és az utcafronti garázsban is bevezetésre került. A belső udvar teljesen aszfaltozott, dekorációként 30 éves pálmákkal fehér kavicságyással a kerítés mentén tujákkal lett díszítve.
Az ingatlan jelenlegi felhasználása, működési engedély alapján: lakóingatlan de átminősítéssel cégek részére is hasznosítható lehet.
Villanyáram: van.
Vízellátás: van.
Csatornázás: van.
Gázellátás: van.

Töltsd fel ingatlanhirdetésed ingyenesen!

Ingyenes hirdetésfeladás
Havi több mint egymillió ingatlankereső
Egyszerű és gyors hirdetésfeladás
Hirdetésfeladás
eladó
Koczkásné N-R ÁgnesIngatlanreferens
+36 70...

Töltsd fel ingatlanhirdetésed ingyenesen!

Ingyenes hirdetésfeladás
Havi több mint egymillió ingatlankereső
Egyszerű és gyors hirdetésfeladás
Hirdetésfeladás
Bank360Bank360
Személyi kölcsön
Lakáshitel
Bankszámla
Utasbiztosítás
1 000 000 Ft50 000 000 Ft
6 hónap50 hónap