Ingatlan360 logo
  • Magánszemélyeknek
  • Közvetítőknek
  • Hirdetésfeladás
  • Árak és hirdetési lehetőségek
  • Mennyit ér az ingatlanom?
  • Ingatlan statisztikák

Eladó családi ház Petőfi Sándor, Péteri

Petőfi Sándor, Péteri képe
20
Petőfi Sándor, Péteri 2. képe
Petőfi Sándor, Péteri 3. képe20
89,5 M Ft
559 375 Ft / m²
160m2
Alapterület
818m2
Telekterület
3
Szoba
Fix 3%-os Otthon Start lakáshitel
Szobák száma
3
Építés éve
nincs megadva
Ingatlan állapota
Átlagos
Emelet
nincs megadva
Parkolás
1 garázs
Légkondicionáló
Nincs
Közös költség
nincs megadva
Fűtés
nincs megadva
Fal építési anyaga
Tégla
Lift
Nincs
Az ingatlanról:
Kétgenerációs lehetőségekkel bíró, eltolt szintes családi ház Péteri kertvárosi övezetében – közel Pesthez, mégis csendben!

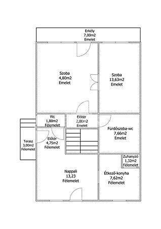
Eladóvá vált egy 160 m²-es, eltolt szintekkel épült közepes állapotú családi ház Péteri egyik legkedveltebb, kiemelt belterületi utcájában, a hangulatos Petőfi Sándor utcában. A házhoz egy tágas, 818 m²-es kert tartozik, sok-sok további alakítási és fejlesztési lehetőséggel – tökéletes azoknak, akik szeretnek saját ízlésre formálni egy ingatlant.

A ház jelenlegi kialakítása – 3 szoba, erkély (9 m²), terasz (3 m²) – ideális alap egy kétgenerációs otthon megvalósításához is. A tetőtér újabb két eltolt szinten beépíthető, ideális alap egy kétgenerációs álomotthon megvalósításához is! A fűtésről vegyes tüzelésű kazán gondoskodik, az udvar pedig igazi kertvárosi nyugalmat áraszt.

Közlekedés szempontjából is szuper választás: Péteri az agglomerációban található, közel Budapesthez, remek elérhetőséggel. A vasút és a busz is gyors és kényelmes kapcsolatot biztosít a főváros felé – így azoknak is ideális, akik naponta ingáznak.

A házhoz tartozik továbbá saját garázs, a környék pedig kifejezetten barátságos, csendes és biztonságos.

Fiatal pároknak, nagycsaládosoknak vagy kétgenerációs otthont keresőknek egyaránt remek lehetőség! ...TOVÁBBI, TÖBBEZRES INGATLAN KÍNÁLAT: www.gdn-ingatlan.hu - GDN azonosító: 389653

Töltsd fel ingatlanhirdetésed ingyenesen!

Ingyenes hirdetésfeladás
Havi több mint egymillió ingatlankereső
Egyszerű és gyors hirdetésfeladás
Hirdetésfeladás
eladó
Kutas JózsefIngatlanreferens
+36 20...
iroda logo
GDN IngatlanhálózatIroda további hirdetései

Töltsd fel ingatlanhirdetésed ingyenesen!

Ingyenes hirdetésfeladás
Havi több mint egymillió ingatlankereső
Egyszerű és gyors hirdetésfeladás
Hirdetésfeladás
Bank360Bank360
Személyi kölcsön
Lakáshitel
Bankszámla
Utasbiztosítás
1 000 000 Ft50 000 000 Ft
6 hónap50 hónap