Eladó sorház Bocskai, Pétfürdő
58 M Ft
483 333 Ft / m²
120m2
Alapterület
110m2
Telekterület
4
Szoba
Szobák száma
4
Építés éve
nincs megadva
Ingatlan állapota
Jó állapotú
Emelet
nincs megadva
Parkolás
1 garázs
Légkondicionáló
Nincs
Közös költség
nincs megadva
Fűtés
Cirkófűtés
Fal építési anyaga
Tégla
Lift
Nincs
Az ingatlanról:
Pétfürdőn eladásra kínálunk egy csendes, zöldövezeti részen lévő 84 m2-es sorházat 100 m2-es telekkel és egy 47 m²-es különálló garázzsal a GDN Ingatlanhálózat kínálatából.
Tulajdonságok:
- Ha csendes környezetre, vágyik; de fontos, hogy a többi nagy város mint: Veszprém, Várpalota, vagy Székesfehérvár illetve a Balaton is közel legyen, akkor jó helyen jár. Ingázóknak tökéletes választás ez az ingatlan!
- Víz, villany, gáz, csatorna a házba bekötésre került.
- Az épület lapostetővel, tégla falazattal 10 cm-es szigeteléssel és vasbeton födémmel készült, a nyílászárók alumínium és műanyag szerkezetűek, redőnnyel felszerelt.
- Az ingatlanhoz tartozik egy hangulatos füvesített hátsó kert, illetve a különálló, 80 m2-es garázs is, amely akár apartman kialakítására is ideális lehetőséget nyújt az új tulajdonosnak.
- Az igényesen kialakított ingatlan elektromos redőnyökkel is felszerelt a teljes lakószinten, valamint klíma beszerelése is megtörtént a felső szobákban.
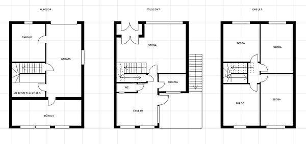
- Az alsó szinten szép tágas teraszról az előtér-étkezőbe lépünk.
Innen nyílik egy nagyobb méretű szoba, valamint a konyha, mosdó-WC-vel és a lépcsőlejáró a garázshoz. A szobában található a kényelmes feljáró az emeletre, ahol a 3 további szobába és a szép tágas és felújított fürdőszobába jutunk.
- A legalsó szinten pedig a jókora garázs mellett 2 műhely kialakítása valósult meg, illetve itt találjuk még a gépezet helyiséget is.
- A városközponthoz közel található, egy nagyon szép park és játszótér van még a közelben, illetve látványosság a csónakázó tó, valamint közeli halastó.
Ajánljuk az ingatlant azoknak, akik Pétfürdőn szeretnének letelepedni; csendes, nyugodt környezetre vágynak, de mégis közel szeretnének lenni a közeli városokhoz; valamint azoknak is, akik a hangos nyüzsgéstől mentesen szeretnék szabadidejüket tölteni.
Ne hagyja ki ezt a remek lehetőséget!
Amennyiben a veszprémi GDN Ingatlaniroda által kínált pétfürdői sorház, vagy bármely, a kínálatunkban található ingatlan felkeltette érdeklődését, forduljon hozzám bizalommal!
Ingatlanirodánk díjmentes, banksemleges hitelügyintézéssel, illetve ügyvédi tanácsadással is áll Ügyfeleink rendelkezésére! ...TOVÁBBI, TÖBBEZRES INGATLAN KÍNÁLAT: www.gdn-ingatlan.hu - GDN azonosító: 382975
Tulajdonságok:
- Ha csendes környezetre, vágyik; de fontos, hogy a többi nagy város mint: Veszprém, Várpalota, vagy Székesfehérvár illetve a Balaton is közel legyen, akkor jó helyen jár. Ingázóknak tökéletes választás ez az ingatlan!
- Víz, villany, gáz, csatorna a házba bekötésre került.
- Az épület lapostetővel, tégla falazattal 10 cm-es szigeteléssel és vasbeton födémmel készült, a nyílászárók alumínium és műanyag szerkezetűek, redőnnyel felszerelt.
- Az ingatlanhoz tartozik egy hangulatos füvesített hátsó kert, illetve a különálló, 80 m2-es garázs is, amely akár apartman kialakítására is ideális lehetőséget nyújt az új tulajdonosnak.
- Az igényesen kialakított ingatlan elektromos redőnyökkel is felszerelt a teljes lakószinten, valamint klíma beszerelése is megtörtént a felső szobákban.
- Az alsó szinten szép tágas teraszról az előtér-étkezőbe lépünk.
Innen nyílik egy nagyobb méretű szoba, valamint a konyha, mosdó-WC-vel és a lépcsőlejáró a garázshoz. A szobában található a kényelmes feljáró az emeletre, ahol a 3 további szobába és a szép tágas és felújított fürdőszobába jutunk.
- A legalsó szinten pedig a jókora garázs mellett 2 műhely kialakítása valósult meg, illetve itt találjuk még a gépezet helyiséget is.
- A városközponthoz közel található, egy nagyon szép park és játszótér van még a közelben, illetve látványosság a csónakázó tó, valamint közeli halastó.
Ajánljuk az ingatlant azoknak, akik Pétfürdőn szeretnének letelepedni; csendes, nyugodt környezetre vágynak, de mégis közel szeretnének lenni a közeli városokhoz; valamint azoknak is, akik a hangos nyüzsgéstől mentesen szeretnék szabadidejüket tölteni.
Ne hagyja ki ezt a remek lehetőséget!
Amennyiben a veszprémi GDN Ingatlaniroda által kínált pétfürdői sorház, vagy bármely, a kínálatunkban található ingatlan felkeltette érdeklődését, forduljon hozzám bizalommal!
Ingatlanirodánk díjmentes, banksemleges hitelügyintézéssel, illetve ügyvédi tanácsadással is áll Ügyfeleink rendelkezésére! ...TOVÁBBI, TÖBBEZRES INGATLAN KÍNÁLAT: www.gdn-ingatlan.hu - GDN azonosító: 382975
Töltsd fel ingatlanhirdetésed ingyenesen!
Ingyenes hirdetésfeladás
Havi több mint egymillió ingatlankereső
Egyszerű és gyors hirdetésfeladás
Töltsd fel ingatlanhirdetésed ingyenesen!
Ingyenes hirdetésfeladás
Havi több mint egymillió ingatlankereső
Egyszerű és gyors hirdetésfeladás
Személyi kölcsön
Lakáshitel
Bankszámla
Utasbiztosítás
1 000 000 Ft50 000 000 Ft
6 hónap50 hónap