Ingatlan360 logo
  • Magánszemélyeknek
  • Közvetítőknek
  • Hirdetésfeladás
  • Árak és hirdetési lehetőségek
  • Mennyit ér az ingatlanom?
  • Ingatlan statisztikák

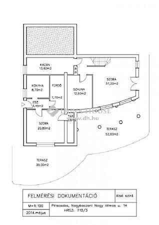
Eladó családi ház Piliscsaba

Piliscsaba képe
22
Piliscsaba 2. képe
Piliscsaba 3. képe22
471,1 M Ft
942 120 Ft / m²
500m2
Alapterület
6000m2
Telekterület
8
Szoba
Szobák száma
8
Építés éve
1996
Ingatlan állapota
Átlagos
Emelet
Földszint
Parkolás
Parkoló
Légkondicionáló
Nincs
Közös költség
nincs megadva
Fűtés
Cirkófűtés
Fal építési anyaga
Tégla
Lift
Nincs
Az ingatlanról:
Piliscsabán Toscan hangulatú családi ház eladó 6000nm es ősfás parkban wellness központtal egyedi panorámával dupla garázzsal személyzeti lakással Közvetlen erdő közelében panoráma luxus csend és nyugalom minden mennyiségben Ha felkeltettem érdeklődését keressen bizalommal Stróbl Gyöngyi 36304559956 Referencia szám: HZ516866

Töltsd fel ingatlanhirdetésed ingyenesen!

Ingyenes hirdetésfeladás
Havi több mint egymillió ingatlankereső
Egyszerű és gyors hirdetésfeladás
Hirdetésfeladás
eladó
Stróbl GyöngyiIngatlanreferens
+36 30...
iroda logo
Tatabánya, Komáromi utcaIroda további hirdetései

Töltsd fel ingatlanhirdetésed ingyenesen!

Ingyenes hirdetésfeladás
Havi több mint egymillió ingatlankereső
Egyszerű és gyors hirdetésfeladás
Hirdetésfeladás
Bank360Bank360
Személyi kölcsön
Lakáshitel
Bankszámla
Utasbiztosítás
1 000 000 Ft50 000 000 Ft
6 hónap50 hónap